Casa McCrae / Wolveridge Architects
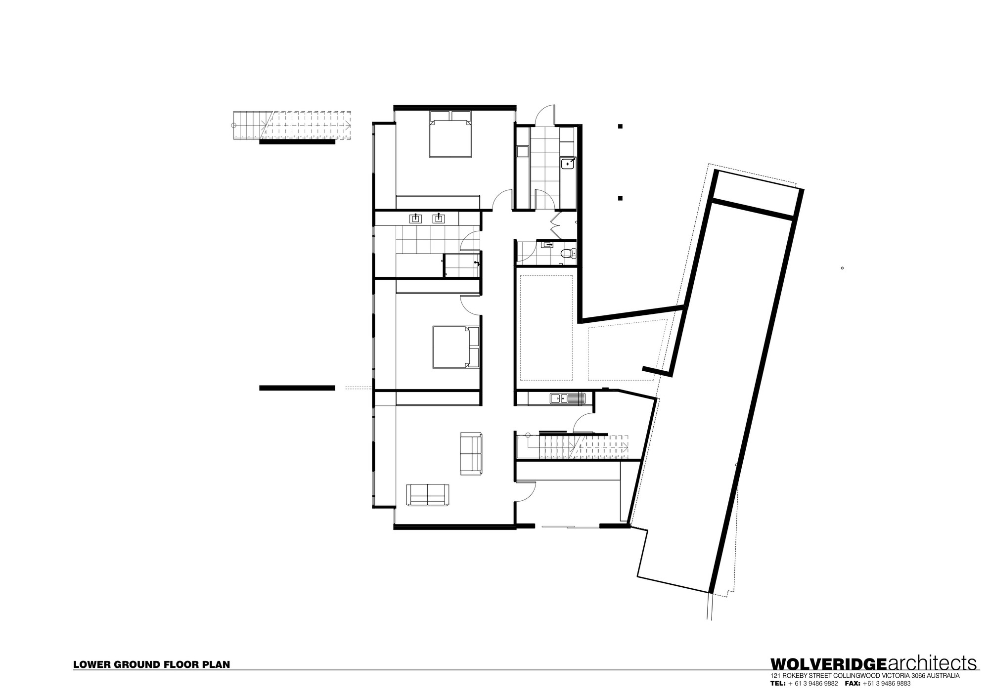
Planta Baja
10
/ 15
...
Guardar imagen
Agrandar imagen
|
Ver tamaño original
Planos
Casas
Compartir
Compartir
Compartir esta imagen
Facebook
Twitter
Mail
Pinterest
O
Copiar URL
Guardar imagen
Obra anterior
Seminario del Territoria al Detalle / Universidad de Talca
Obras Destacadas
Próxima Obra
Passion House M1 / Architect 11
Obras Destacadas
✕
✕