Casa G+B / Mariana Orsi Arquitetura + Design
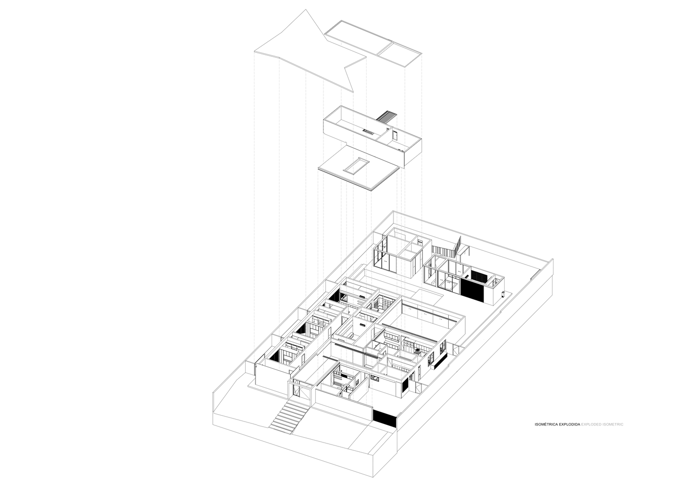
Isométrica
30
/ 31
...
Guardar imagen
Agrandar imagen
|
Ver tamaño original
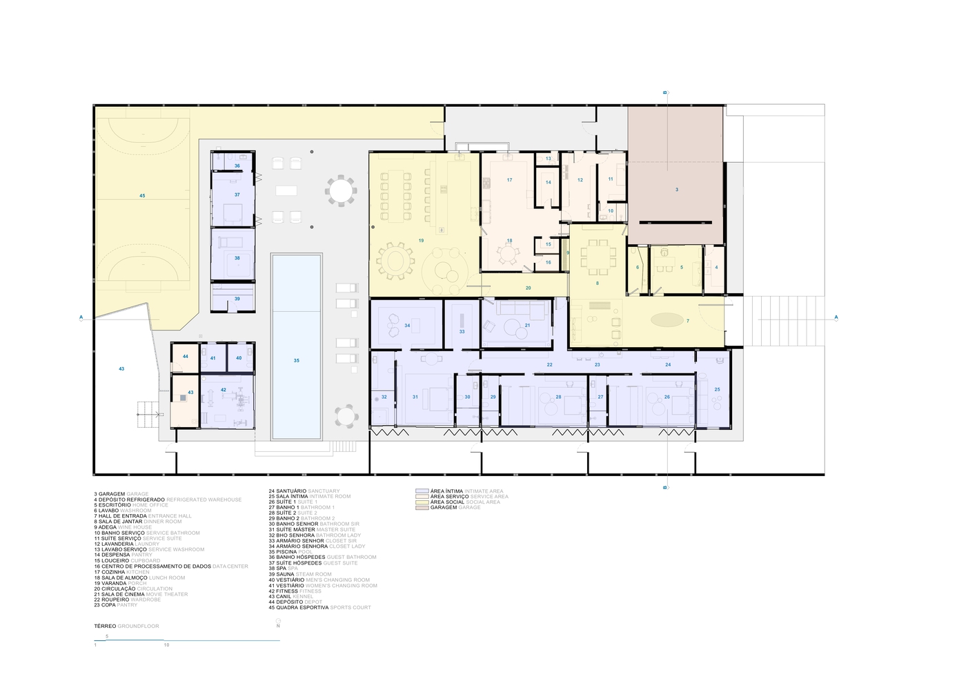
Planos
Casas
Compartir
Compartir
Compartir esta imagen
Facebook
Twitter
Mail
Pinterest
O
Copiar URL
Guardar imagen
✕
✕