
-
Arquitectos: Sonne Müller Arquitetos
- Área: 500 m²
- Año: 2025
-
Fotografías:Pic Company

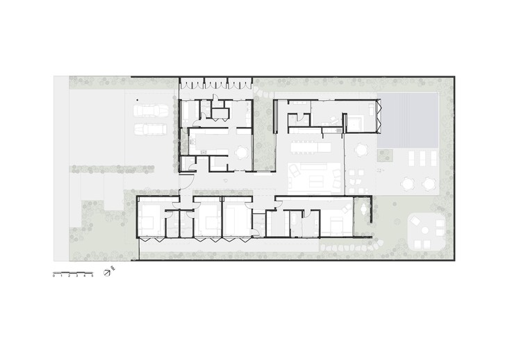
Descripción enviada por el equipo del proyecto. La Casa Galería fue diseñada para una artista plástica de 84 años que buscaba una residencia en planta baja, amplia y contemporánea, donde el cotidiano y la contemplación pudieran coexistir sin barreras físicas. El punto de partida fue la necesidad de crear una casa totalmente nivelada, con circulaciones amplias y ambientes fluidos, garantizando comodidad, autonomía y una lectura simple de los espacios.


La circulación principal se convierte en el eje estructurador de la propuesta. Generosa, iluminada cenitalmente y acompañada de madera y paisajismo, funciona como galería para las obras de la residente. Cada cuadro fue estudiado previamente, definiendo su posición y el diseño de la iluminación, acercando la arquitectura y el arte desde las etapas iniciales del proyecto.

El área social se organiza como un gran espacio continuo que integra estar, comedor y zona gourmet. Las cubiertas elevadas y esbeltas, ligeramente inclinadas, amplían la altura del techo y cualifican la entrada de luz, generando una atmósfera ligera y acogedora. Esta solución también refuerza la permeabilidad visual hacia el exterior y acentúa la vocación de la casa para recibir a familiares y amigos.

El ala íntima está marcada por la presencia de piedra natural, que aporta textura y estabilidad a los volúmenes. La suite principal incorpora un jardín privado, concebido como un respiro verde y una extensión sensorial del espacio. La materialidad sigue un vocabulario preciso: madera en los techos, con una paginación que realza sus vetas; estructura metálica que posibilita vanos libres y aporta ligereza; piedra natural como contrapunto de peso y permanencia; y brises de aluminio que filtran la luz y controlan la privacidad.


Uno de los momentos más singulares del proyecto es el volumen del gimnasio y el SPA, implantado sobre la piscina. El óculo que articula estos dos elementos fue diseñado con atención extrema a los niveles y a la estructura, generando el efecto deseado de suspensión y garantizando continuidad visual entre agua, luz y arquitectura.

La relación entre interiores y arquitectura se dio de manera integrada: pisos, revestimientos, madera, granitos, mobiliario e iluminación fueron definidos en conjunto para reforzar la coherencia y unidad espacial. Esta integración también garantizó que el recorrido de la casa mantuviera una narrativa continua, a veces contemplativa, a veces social.

La Casa Galería se sustenta en principios esenciales del proyecto: vanos generosos, uso criterioso de los materiales, claridad estructural y espacial, integración con el paisaje y una atención rigurosa al detalle.
























