Casa el Aromo / Duarte Fournies Arquitectos

Casa el Aromo / Duarte Fournies Arquitectos - Fotografía exterior, Madera, Puerta, ConcretoCasa el Aromo / Duarte Fournies Arquitectos - Fotografía interior, Comedor, Madera, Fijación Vigas, SillasCasa el Aromo / Duarte Fournies Arquitectos - Fotografía interior, Sala de estar, MaderaCasa el Aromo / Duarte Fournies Arquitectos - Fotografía interior, Madera, Cocina, EncimeraCasa el Aromo / Duarte Fournies Arquitectos - Más Imágenes+ 18

Santiago, Chile
  • Área Área del proyecto de arquitectura Área:  146
  • Año Año del Proyecto de arquitectura Año:  2023
  • Fotógrafos
    Fotografías:Marcos Zegers
  • Proveedores Marcas y productos usados en este proyecto de arquitectura
    Proveedores:  CHC, CUBIERTAS NACIONALES, ETERWIND, MK, OPENDARK
  • Categoria: Casas, Renovación
  • Arquitectos Líderes: Hernan Fournies, Juan Pablo Duarte
  • Ciudad: Santiago
  • Pais: Chile
Más informaciónMenos información
Casa el Aromo / Duarte Fournies Arquitectos - Imagen 6 de 23
© Marcos Zegers

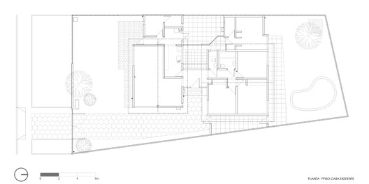
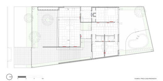
Descripción enviada por el equipo del proyecto. El proyecto considera la remodelación de una vivienda unifamiliar construida en 1970, ubicada en la comuna de Vitacura, Santiago de Chile, sobre un lote de 392 m². El terreno, de 14 m de frente por 28 m de fondo, contempla una edificación al centro del predio, lo que configura un patio hacia la calle y otro hacia el fondo del sitio.

Content Loader

Galería del Proyecto

Ver todoMostrar menos
Sobre esta oficina
Cita: "Casa el Aromo / Duarte Fournies Arquitectos" 24 dic 2025. ArchDaily México. Accedido el . <https://www.archdaily.mx/mx/1037354/casa-el-aromo-duarte-fournies-arquitectos> ISSN 0719-8914

Has seguido tu primera cuenta!

¿Sabías?

¡Ahora recibirás actualizaciones de las cuentas a las que sigas! Sigue a tus autores, oficinas, usuarios favoritos y personaliza tu stream.