
-
Arquitectos: Anna & Eugeni Bach
- Área: 150 m²
- Año: 2024
-
Fotografías:Eugeni Bach

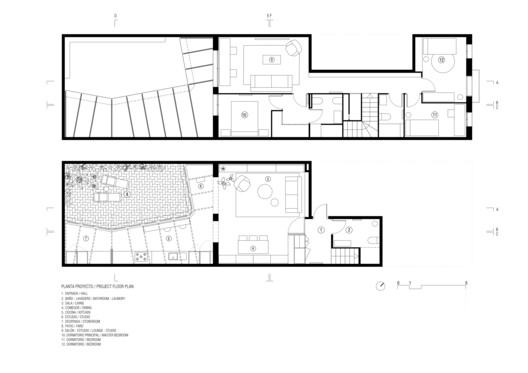
Descripción enviada por el equipo del proyecto. Disfrutar del espacio exterior. Cocinar, comer y compartir la tarde con los amigos bajo las hojas de un denso ficus en una habitación al aire libre. Convertir el jardín existente en una estancia más de la casa para generar un oasis dentro del barrio donde trasladar gran parte de la actividad diaria, mientras gozamos del agradable clima mediterráneo.























