
-
Arquitectos: André Becker
- Área: 220 m²
- Año: 2023
-
Fotografías:Ana Mello

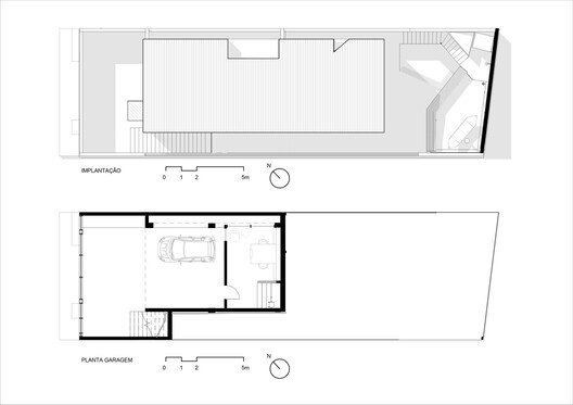
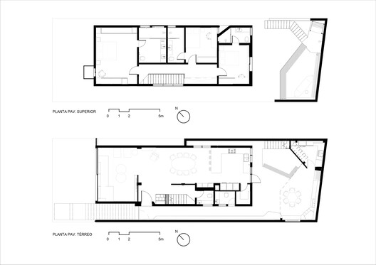
Descripción enviada por el equipo del proyecto. Reforma residencial en el Jardim das Bandeiras, barrio vecino a Vila Madalena, en São Paulo. La región tiene una topografía de colinas, con el lote bastante inclinado, se accede por la parte baja.













































