Never-Apart-ment / Spacefiction Studio
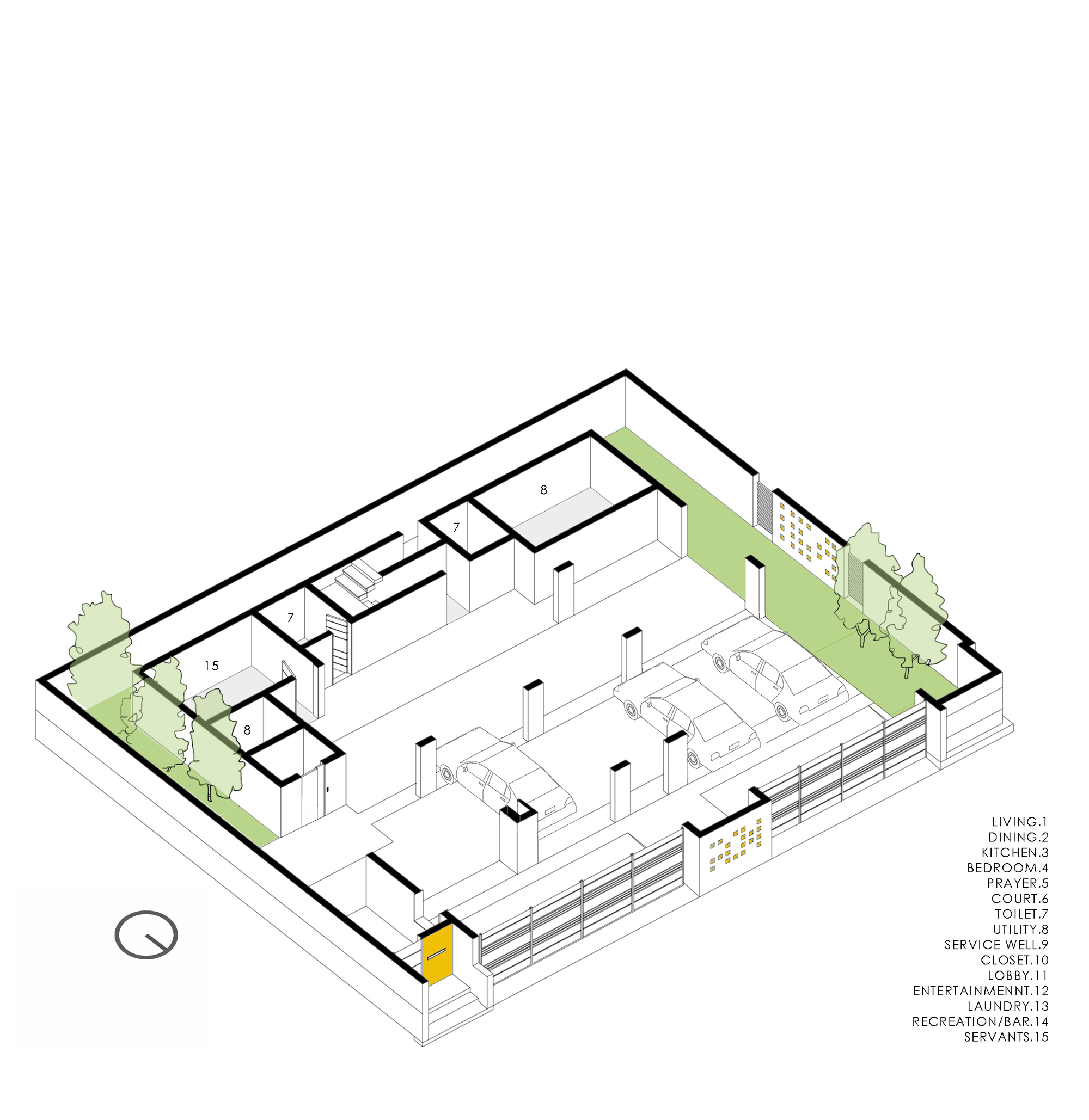
Axonométrica primer piso
41
/ 54
...
Guardar imagen
Agrandar imagen
|
Ver tamaño original
Planos
Apartamentos
Compartir
Compartir
Compartir esta imagen
Facebook
Twitter
Mail
Pinterest
O
Copiar URL
Guardar imagen
Obra anterior
SALA CLINIC - Instituto Odontológico / Iván Cotado Diseño de Interiores
Obras Destacadas
Próxima Obra
Edificio Único / Turner Arquitectos
Obras Destacadas
✕
✕