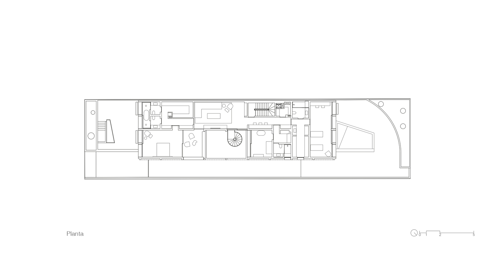
Casa Atlântica / Felipe Hess Arquitetos
Agrandar imagen
|
Ver tamaño original
Compartir
Compartir
Compartir esta imagen
Facebook
Twitter
Mail
Pinterest
O
Copiar URL
✕
✕