
-
Arquitectos: Felipe Hess Arquitetos
- Área: 850 m²
- Año: 2025

Descripción enviada por el equipo del proyecto. Ubicada en São Paulo, en un lote estrecho y profundo, la residencia fue concebida para una pareja joven, coleccionistas de arte, y sus cuatro hijos. El proyecto parte de dos premisas: albergar una colección de arte contemporáneo y crear espacios de convivencia para la vida familiar.


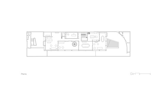
La estructura de la casa se organiza a partir de una cuadrícula, presente en las fachadas y en la terraza central. Este patio interior proporciona iluminación natural, funcionando también como un espacio de respiro y organizando la circulación. La casa se cierra hacia los laterales, priorizando la intimidad, y se orienta hacia su propio interior.


Distribuida en cuatro niveles, la residencia cuenta en el sótano semienterrado con un jardín lateral —el alma del proyecto— que transforma el espacio en una zona de juegos y convivencia. En la planta baja, las áreas sociales reúnen la sala de estar, el estudio, el comedor y una cocina abierta conectada con la terraza y la piscina. En el nivel intermedio se encuentran la suite principal, orientada hacia el frente del terreno, los dormitorios de los niños hacia la parte posterior y una sala íntima con área de estudio. La azotea concentra las áreas de ocio y encuentro: solárium, comedor al aire libre y zona de proyección.


La casa invita a explorar. Los niños suben por una escalera, bajan por otra, atraviesan la rampa en bicicleta. Cada desplazamiento abre nuevas relaciones entre los espacios. Las circulaciones crean recorridos variados, internos y externos, que hacen la casa dinámica; se observan a través del patio, generando una dinámica de miradas cruzadas y encuentros inesperados.


En el mobiliario, piezas utilizadas en proyectos anteriores fueron restauradas e integradas a nuevas elecciones. Obras de Joaquim Tenreiro, Hans Wegner y muebles adquiridos en anticuarios de Uruguay conforman el conjunto. En el estudio, el revestimiento textil y la estantería diseñada a medida realzan la presencia de las obras de arte.


La Casa Atlántica reúne arte, cotidianidad y vida familiar en un mismo espacio.
















