Nuestros amigos de la revista JA+U, han compartido con nosotros este video en el que nos presentan la Casa en Komazawa de los arquitectos de Go Hasegawa & Associates. En él podemos ver con más detalle un interesante trabajo con la madera, que va desde una fachada rústica hasta un interior que conecta visualmente sus dos niveles a través de un entre piso permeable, que permite el paso de la luz natural desde la biblioteca hasta la sala de estar principal.
Tokio: Las más recientes noticias y obras de arquitectura
Video: Casa en Komazawa / Go Hasegawa
Casa de dos patios / Keiji Ashizawa Design

Arquitectos: Keiji Ashizawa Design Ubicacación: Tokio, Japón Arquitecto de Proyecto: Keiji Ashizawa / Naoki Sekikawa Ingeniería Estructural: ASA asociates / Akira Suzuki Fecha: 2008 Fotografías: Daici Ano
Casa Lik / Satoru Hirota Architects

Arquitectos: Satoru Hirota Architects – Satoru Hirota Ubicación: Tokio, Japón Cliente: Privado Diseño Estructural: nieda+hisaeda architects / Taizen Nieda+Taizo Komatsu Contratista: Eiger Co. Ltd, / Noriaki Fujii+Masakazu Sasaki+Koji Misaki Superficie Total: 294.90 m2 Superficie Construida: 108.21 m2 Fecha: 2010 Fotografías: Satoru Hirota Architects
Casa Mishima / Keiji Ashizawa Design

Arquitectos: Keiji Ashizawa Design Ubicación: Tokio, Japón Arquitectos de Proyecto: Keiji Ashizawa, Chino YamaguchiÅ Ingeniería Estructural: ÅFASA Akira Suzuki Fecha: 2010 Fotografías: Daici Ano
Mesa Gulliver / Torafu Architects

© Fuminari Yoshitsugu / TORAFU ARCHITECTS Arquitectos: Torafu Architects Ubicación: Tokyo Midtown DESIGN TOUCH Park, Tokyo, Japón Diseño Estructural: Ohno JAPAN Producción: Ishimaru Fecha de Construcción: Octubre 2011 Fotografías: Fuminari Yoshitsugu / Torafu Architects El Parque Design Touch dio inicio en un campo abierto de pasto en el centro deTokio, donde el diseño se puede disfrutar con los cinco sentidos. Aquí, los arquitectos de Torafu Architects propusieron un escenario abierto en el que niños y adultos participen en talleres mientras se divierten.
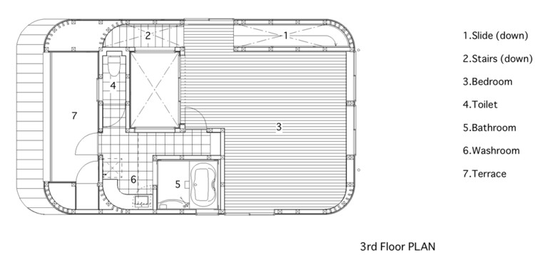
Casa SLIDE / Level Architects

Arquitectos: Level Architects – Kazuki Nakamura y Kenichi Izuhara Ubicación: Tokio, Japón Superficie del terreno: 110 m2 Superficie construida: 163 m2 Fecha construcción: 2009 Fotografías: Shinichi Tanaka
Tree-ness House / Akihisa Hirata

Acortando la distancia entre la naturaleza y la arquitectura, la oficina de arquitectura de Akihisa Hirata, con sede en Tokio, ha diseñado un complejo residencial en Toshima-ku, Tokio, Japón. Este complejo orgánico tiene estas características para romper con la típica forma arquitectónica que se ve muy a menudo en la arquitectura residencial.
Alp / Akihisa Hirata

Arquitectos: Akihisa Hirata Ubicación: Kita, Tokio, Japan Superficie terreno: 294,02 m2 Superficie edificio: 161,92 m2 Superficie construida: 499 m2 Fecha: 2008-2010 Fotografías: Toshiyuki Yano
Omotesando Vertical / WAI Architecture Think Tank

Arquitectos: WAI Architecture Think Tank Ubicación: Tokyo, Japón Fecha: 2010 Equipo de diseño: Nathalie Frankowski, Cruz García
Casa en Matsubara / Ken'ichi Otani Architects

Ubicación: Setagaya, Tokio, Japón Architect : Ken’ichi Otani / Ken’ichi Otani Architects Structure engineer: Yukihiro Kato / MID Superficie sitio: 70.00m2 Superficie construida primer piso: 39.84m2 Superficie construida total: 95.64m2 Construction: Octubre 2006 – Agosto 2007 Photo: Koichi Torimura
Cine y Arquitectura: "Lost In Translation"

Siguiendo con una cinta más contemporánea, esta semana les presentamos Lost In Translation (traducida al español como “Perdidos en Tokio”), que nos muestra el choque cultural entre oriente y occidente, representando la atmósfera de la metrópolis asiática de una manera exquisita, tomando en cuenta desde las locaciones precisas para cada escena, hasta pequeños detalles que nos permiten transportarnos a este “mundo” en el que estos personajes se ven inmersos pero a la vez tan ajenos por las barreras culturales.
Centro de Conciencia Medioambiental / R204DESIGN

A 30 kilómetros de la ajetreada ciudad de Tokio, la oficina de arquitectura de Los Angeles R204DESIGN ha propuesto un Centro de Conciencia Medioambiental, que revitaliza el antiguo Canal Tone. La propuesta utiliza la huella hidrológica del mismo canal como punto de partida para generar los espacios del nuevo centro que apunta a generar conciencia sustentable en la comunidad y a su vez sirve como un “escape natural” a la vida en la metrópolis japonesa.






