
-
Arquitectos: LABarq
- Área: 559 m²
- Año: 2025
-
Fotografías:Ariadna Polo
-
Proveedores: Pinturas Berel, Tecnotabla, URREA, PlayLux, CASTEL, Epca, HOMEA, Tecnolite

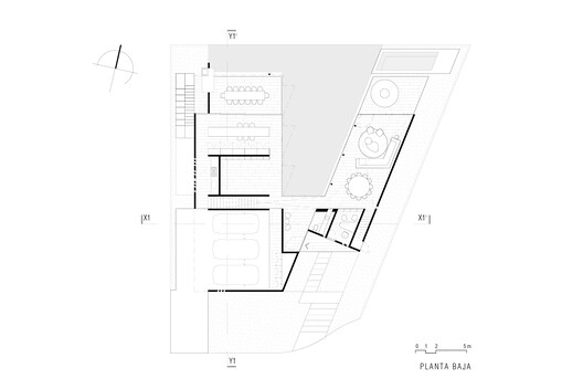
Descripción enviada por el equipo del proyecto. Casa Río es un proyecto que responde de manera sensible a la topografía y a la geometría irregular de su terreno. Su forma en "V" no solo resuelve la condición trapezoidal del predio, sino que genera un jardín central que articula la vivienda y enmarca las vistas hacia el entorno natural circundante.


La intención es que la arquitectura desaparezca entre los árboles, con muros ciegos al frente y una apertura total hacia el paisaje posterior: una casa ligera, transparente y consciente de su entorno.

El diseño se despliega en dos volúmenes principales. El primero, inclinado para adaptarse a la pendiente, alberga los espacios sociales: sala y comedor a doble altura, un despacho con acceso independiente y un mezzanine que amplifica es espacio interior. Hacia el exterior, una alberca y un fogatero generan continuidad entre arquitectura y paisaje.


El segundo volumen concentra los servicios en planta baja —cocina, sala de TV, terrazas y núcleo de circulaciones—, además de un sótano con bodegas y cuartos de servicio. La planta alta está destinada a los espacios privados: una recámara principal con walk-in closet y tres recámaras secundarias que se abren estratégicamente hacia la fachada noroeste, logrando vistas controladas sin comprometer la privacidad.


El diseño estructural se integra como parte del lenguaje arquitectónico. Columnas de acero esbeltas, placas y tensores metálicos permiten claros amplios y una lectura ligera. En las recámaras, los tensores regulan el asoleamiento y direccionan las vistas, reforzando la conexión con el exterior. Los muros laterales del primer volumen flotan sobre el terreno, intensificando la sensación de ligereza y transparencia.


Las fachadas crean un diálogo contrastante: al frente y en los laterales se presentan sobrias y sólidas, mientras que la posterior se abre completamente mediante canceles de piso a techo, disolviendo los límites entre interior y exterior.

La materialidad refuerza esta integración con el contexto a través del uso de recursos locales: mármol Santo Tomás, chapa de nogal y lambrines estriados tipo madera, que dialogan con jardines secos de grava controlada y vegetación nativa de bajo consumo hídrico. El proyecto sustituye el césped tradicional por un paisajismo sustentable, reduciendo el impacto ambiental y reforzando su vínculo con el territorio.
































