
-
Arquitectos: Martina Lew
- Área: 90 m²
- Año: 2025
-
Fotografías:Alex Freixá Kalwill

Descripción enviada por el equipo del proyecto. El proyecto se ubica en Villa Paranacito, Entre Ríos, dentro del ecosistema del Delta Entrerriano, más precisamente a orillas de un canal secundario que deriva del Arroyo Martínez. Se trata de una zona de islas bajas e inundables, enmarcada por albardones naturales, vegetación ribereña y una red de cursos de agua que conforman un sistema fluvial dinámico.


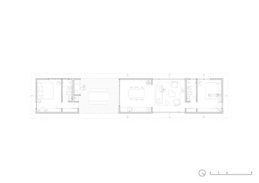
La casa se implanta sobre una elevación natural del terreno, lo que garantiza mejores condiciones de asentamiento y resguardo frente a posibles inundaciones. Las decisiones de diseño se tomaron en estrecha relación con el paisaje. La casa busca capturar las mejores vistas en ambas direcciones: hacia el canal y hacia el campo abierto que se extiende al lado opuesto. Para responder a esta doble orientación, se proyectó una estructura lineal de madera, de 4 metros de ancho por 22 metros de largo.


Una galería longitudinal actúa como espacio de transición y articulación, organizando la vivienda en dos sectores principales: por un lado, el núcleo doméstico —compuesto por cocina, comedor, living integrados y una habitación en suite— y, por el otro, un cuarto de huéspedes.


Debido a su implantación lineal y su apertura hacia ambos frentes, la casa enmarca el paisaje y construye escenas cuidadosamente dirigidas tanto hacia el curso de agua como hacia el campo. Esta estrategia no solo permite habitar el entorno, sino también ponerlo en valor, integrando el paisaje como parte esencial de la experiencia espacial.

Fue un proyecto soñado, que nació de la fascinación por el ecosistema del Delta del Paraná, y que encuentra en su implantación, orientación y forma una manera de convivir con el paisaje en lugar de imponerse sobre él —un gesto simple, respetuoso y profundamente enraizado en la lógica del territorio.

























