Casa en La Vicentina / Al Borde

Casa en La Vicentina / Al Borde - Fotografía exterior, Ladrillo, BalcónCasa en La Vicentina / Al Borde - Fotografía interior, Cocina, Madera, EncimeraCasa en La Vicentina / Al Borde - Fotografía exterior, LadrilloCasa en La Vicentina / Al Borde - Fotografía interior, Dormitorio, Madera, Sillas, Balcón, BarandasCasa en La Vicentina / Al Borde - Más Imágenes+ 36

Quito, Ecuador
  • Arquitectos: Al Borde
  • Área Área del proyecto de arquitectura Área:  210
  • Año Año del Proyecto de arquitectura Año:  2024
  • Fotógrafos
    Fotografías:JAG Studio
  • Categoria: Casas
  • Arquitectura Y Construcción: Al Borde
  • Colaboradoras Al Borde: María Fernanda Heredia, Melissa Narváez
  • Sostenibilidad: Grupo Investigación Scinergy
  • Colaboradores Scinergy: Estefany Vizuete, Joel Vega
  • Ingeniería Estructural: Patricio Cevallos
  • Planimetría: Carolina Quishpe
  • Ciudad: Quito
  • Pais: Ecuador
Más informaciónMenos información
Casa en La Vicentina / Al Borde - Imagen 6 de 41
© JAG Studio

Descripción enviada por el equipo del proyecto. El proyecto se emplaza en La Vicentina, un barrio tradicional de clase media en Quito, Ecuador. La ubicación del lote en una escalinata imposibilita tener parqueadero, lejos de ser una desventaja, se alinea con el estilo de vida del propietario, que es usuario frecuente de la bicicleta. Además, la topografía en ladera brinda la oportunidad de aprovechar la vista hacia el cerro Auqui. A estas condicionantes se suman las necesidades del cliente: una vivienda para uso propio, una más pequeña para su hija, y un espacio común versátil que pueda funcionar como taller o área social.

Casa en La Vicentina / Al Borde - Fotografía interior, Cocina, Madera, Encimera
© JAG Studio
Casa en La Vicentina / Al Borde - Fotografía interior, Dormitorio, Madera, Sillas, Balcón, Barandas
© JAG Studio

La casa es el proyecto personal de Freddy Ordóñez, Ingeniero Mecánico, profesor universitario y director del grupo de investigación SCINERGY de la Escuela Politécnica Nacional. El proyecto demuestra la factibilidad de construir una vivienda resiliente en zona urbana, cuyas estrategias pueden ser replicadas en regiones ecuatoriales. La vivienda se ha convertido en parte integral de su investigación que, equipada con sensores, genera datos que el grupo analiza para comprobar su adecuado funcionamiento.

Casa en La Vicentina / Al Borde - Fotografía exterior, Balcón
© JAG Studio

Haciendo Vecindad

La forma del proyecto privilegia la verticalidad para liberar espacio en planta baja. Se crean dos volúmenes delgados que maximizan la superficie del patio. Esta operación de compactación genera un patio central que se suma al patio vecino, integrando el árbol de jacarandá existente. La forma trapezoidal del patio es resultado de optimizar la ganancia solar mediante la reducción del extremo este y la ampliación del extremo oeste. 

Casa en La Vicentina / Al Borde - Fotografía exterior, Ladrillo
© JAG Studio

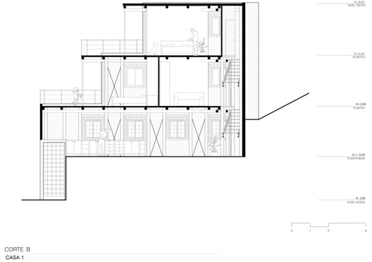
La estrechez de las plantas hace que se asigne una función principal a cada nivel: el área social en la planta baja, una habitación y un estudio en el primer piso, y otra habitación en el segundo. La progresiva reducción del área requerida en cada nivel permite retraer las plantas, creando terrazas orientadas al este. Estas terrazas se abren a la vista, captan radiación solar, conectan con el barrio  y refuerzan la relación con el exterior.

Casa en La Vicentina / Al Borde - Fotografía exterior, Ladrillo, Balcón
© JAG Studio

La ausencia de un muro perimetral entre la calle y la vivienda, sumada a la orientación de las ventanas hacia el espacio público, no es casual. Estas decisiones de diseño generan una vigilancia comunitaria espontánea, donde la mayor visibilidad disuade actos delictivos y, al mismo tiempo, promueve la interacción social y fortalece el sentido de comunidad. Así, la arquitectura no solo satisface la necesidad del cliente de conectarse con su barrio, sino que se convierte en una herramienta activa para construir vecindad.

Casa en La Vicentina / Al Borde - Fotografía exterior
© JAG Studio

Lo que el entorno nos da

La presencia del eucalipto en el paisaje quiteño es un recordatorio de las decisiones tomadas en el pasado y sus consecuencias a largo plazo. Introducido en Ecuador en 1865 durante el gobierno de Gabriel García Moreno, el eucalipto se promovió como un recurso de rápido crecimiento para la construcción y la forestación. Sin embargo, su naturaleza invasiva ha generado efectos negativos en el ecosistema andino: los bosques de eucalipto se expandieron rápidamente, impidiendo el crecimiento de especies locales y erosionando el suelo. 

Casa en La Vicentina / Al Borde - Imagen 32 de 41
Corte A

En este proyecto, las columnas se resuelven con pingos (madera rolliza de eucalipto) de 9 metros de largo, sin que esto represente un requerimiento técnico complejo. Los pingos fueron obtenidos de un bosque cercano, a 12.3 km de la obra, en el cual su propietario está sustituyendo los eucaliptos para sembrar especies nativas, restaurando así el equilibrio ecológico. Además, esta proximidad del bosque facilita un control completo del proceso y la trazabilidad de los materiales, aspectos que suelen ser complejos en la construcción convencional.

Casa en La Vicentina / Al Borde - Fotografía exterior, Balcón
© JAG Studio

La construcción con pingos ofrece una eficiencia notable porque se elimina la necesidad de procesamiento y transformación de la madera. Utilizar el tronco en su estado natural permite el aprovechamiento máximo del material, reduciendo el consumo de energía y los desperdicios generados en la industrialización, donde se busca obtener piezas ortogonales de tamaños estándar. Como resultado, la elección de pingos para la estructura reduce significativamente las emisiones de carbono incorporadas y operativas.

Casa en La Vicentina / Al Borde - Imagen 34 de 41
Fachada Sur
Casa en La Vicentina / Al Borde - Imagen 33 de 41
Fachada Norte

Piel de Ladrillo

La madera debe ser protegida. Se decide que esta protección sea de ladrillo por su resistencia frente a agentes climáticos pero además porque nos aporta algo fundamental al proyecto: la capacidad de captar calor, almacenarlo y liberarlo gradualmente. La piel está separada de la irregular madera rolliza para facilitar la construcción.

Casa en La Vicentina / Al Borde - Imagen 18 de 41
© JAG Studio
Casa en La Vicentina / Al Borde - Fotografía interior, Madera, Fijación Vigas
© JAG Studio

La combinación de ladrillo y madera en una zona sísmica como Quito representó desafíos estructurales. Una pared de 14cm de ladrillo no puede soportar tres pisos por sí sola. En este proyecto, se busca la colaboración entre ambos sistemas: el esqueleto se resuelve con pingos mientras que el ladrillo aporta rigidez.

Casa en La Vicentina / Al Borde - Fotografía interior, Madera, Concreto, Fijación Vigas
© JAG Studio

Se optó por ladrillo artesanal, producido en ladrilleras que son negocios familiares, esta decisión no se basa en la falta de acceso a ladrillos industriales, sino en una búsqueda de favorecer a pequeños productores locales.

Casa en La Vicentina / Al Borde - Fotografía interior, Madera
© JAG Studio

De lo Individual a lo Colectivo

La casa es un laboratorio abierto para la investigación. El diseño prioriza el confort térmico pasivo, con estrategias como la orientación solar, ventilación cruzada, masa térmica y aislamiento en techos y suelos, logrando un 72% de horas de confort térmico interior, en una ciudad donde las viviendas rara vez sobrepasan el 40% de horas de confort anuales. También, la vivienda alcanza un balance neto cero de energía eléctrica gracias a un sistema fotovoltaico, el uso de bomba de calor para el calentamiento de agua y la reducción de consumo eléctrico. Así mismo, el consumo de agua se reduce en un 40% mediante la recolección de agua de lluvia y el tratamiento de aguas grises. Finalmente, la elección de madera de eucalipto para la estructura, entrepisos y techo, junto con ladrillo artesanal para la mampostería, reduce el carbono embebido en un 80% en comparación con la construcción convencional, según estudios en curso.

Casa en La Vicentina / Al Borde - Fotografía interior, Madera, Ladrillo, Vidrio
© JAG Studio

El patio central de la casa está diseñado como un espacio de infiltración, lo que contribuye a la recarga de los acuíferos de la ciudad. Cada acción cuenta, si consideramos que las fuentes de agua están cada vez más distantes y que las zonas urbanas sufren más por la provisión de agua. Si, en lugar de depender únicamente de grandes infraestructuras para abordar el cambio climático en las ciudades, se promueven proyectos con pequeñas acciones replicables, la solución no recae solo en inversiones masivas del Estado, al contrario, la sumatoria de acciones individuales puede reducir la dependencia de infraestructuras a gran escala, demostrando cómo lo micro puede influir en lo macro.

Casa en La Vicentina / Al Borde - Fotografía interior, Madera, Ladrillo
© JAG Studio

Galería del Proyecto

Ver todoMostrar menos
Sobre esta oficina
Cita: "Casa en La Vicentina / Al Borde" 13 ago 2025. ArchDaily México. Accedido el . <https://www.archdaily.mx/mx/1033037/casa-en-la-vicentina-al-borde> ISSN 0719-8914

Has seguido tu primera cuenta!

¿Sabías?

¡Ahora recibirás actualizaciones de las cuentas a las que sigas! Sigue a tus autores, oficinas, usuarios favoritos y personaliza tu stream.