
-
Arquitectos: Estudio 3.14
- Área: 1042 m²
- Año: 2025
-
Fotografías:Albers Studio
-
Proveedores: B&F Diseño, Galería y Taller, Camco Rattan, Casa Savia, Chamula, Noble Planta, Nogal Beat, Sacro Barro, Sakal Macramé, Stul, Ulalight

Descripción enviada por el equipo del proyecto. Celebrar lo local desde el corazón de la cocina. En Bucerías, la mesa se enciende con brasas. El mar y la tierra marcan el sabor de cada día, y el origen importa: quién pesca, de dónde viene y qué historia cuenta cada ingrediente. Esa fue la inspiración que —después de más de dos décadas de colaboración en el emblemático Café des Artistes— dio forma al nuevo proyecto de Estudio 3.14 junto al chef Thierry Blouet: un espacio que honra lo local y lo transforma en experiencia arquitectónica.

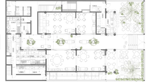
El reto inicial fue trabajar con un inmueble cargado de símbolos de una arquitectura distante: una fachada neoclásica con su frontón solemne. Siguiendo la premisa de "romper lo global para dar camino a lo local", el primer gesto fue abrir esa fachada y permitir la entrada de un patio de doble altura que atraviesa el edificio. Con ello, la ventilación cruzada, la luz natural y la vegetación tropical ocuparon el centro del proyecto, resignificando su esencia. Incluso la escultura bustística, antes asociada a la solemnidad académica, encontró un nuevo lugar frente a la cocina, estableciendo un diálogo más cercano, cotidiano y hospitalario.



La construcción se apoyó en técnicas locales y materiales de la región. Muros de acabados naturales, tonos ahumados, madera tropical y piedra de la zona evocan la sencillez y la calidez de una casa de pueblo. Estas decisiones no solo respondieron a la intención estética, sino también a la búsqueda de durabilidad y honestidad material, reforzando la idea de autenticidad que define al proyecto.


El espacio se organiza como una casa abierta. Patios y terrazas permiten que el recorrido esté acompañado siempre por la vegetación, la luz y el aire. Al interior, la cava, la biblioteca y los comedores ofrecen ambientes diversos, todos reunidos bajo una misma noción de hospitalidad. La atmósfera resultante es cálida y cercana: un lugar que combina tradición y contemporaneidad, donde la arquitectura acompaña al fuego y a los ingredientes para celebrar lo local desde el corazón de la cocina.











