
-
Arquitectos: Saavedra y Sabbagh Arquitectos
- Área: 9999 m²
- Año: 2025
-
Fotografías:Pablo Casals Aguirre
-
Proveedores: TOP WOOD, Topwood

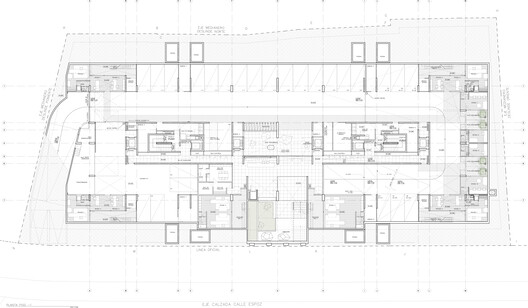
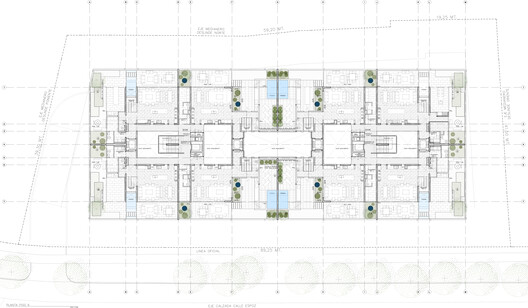
Descripción enviada por el equipo del proyecto. Ubicado en un consolidado barrio residencial de Vitacura, rodeado de parques, plazas, restaurantes y servicios, este edificio de 34 departamentos distribuidos en 6 pisos busca ofrecer una experiencia de vivienda distinta: vivir en altura con la calidez y el carácter de una casa.


El proyecto nace de la intención de integrar el paisaje cotidiano en la vida interior. Grandes ventanales, jardineras y jardines acompañan cada unidad, borrando los límites tradicionales entre interior y exterior, y generando una conexión permanente con la naturaleza. Todos los departamentos cuentan con amplias terrazas, concebidas como una extensión natural del estar interior y como un espacio de encuentro y disfrute al aire libre. En el primer nivel, los jardines y piscinas privadas refuerzan la idea de habitar una casa, mientras que en el sexto piso las terrazas con vegetación y piscina recrean la experiencia de un patio elevado, con vistas privilegiadas.

Uno de los rasgos más distintivos es la espacialidad interior. La mayoría de los departamentos cuentan en su zona de estar principal con dobles alturas de 5,60 metros, que entregan una sensación de amplitud, luminosidad y prestancia poco común en proyectos residenciales. Este recurso no solo enriquece la experiencia cotidiana de los habitantes, sino que además aporta un sello arquitectónico claro y reconocible.


El edificio incorpora además oficinas en el nivel subterráneo, iluminadas mediante patios ingleses que generan ventilación y luz natural, creando espacios de trabajo confortables y conectados con el exterior.


El uso de materiales nobles contribuye a reforzar la atmósfera cálida y atemporal. La madera se combina con el hormigón visto, logrando un equilibrio entre solidez y calidez, entre lo urbano y lo natural. La elección de estos materiales responde a la búsqueda de un proyecto que no solo ofrezca confort, sino también permanencia en el tiempo.

En síntesis, este edificio propone una manera diferente de habitar la ciudad: departamentos que invitan a vivir con la amplitud, la naturaleza y la intimidad de una casa, en un entorno urbano privilegiado.

























