
-
Arquitectos: Herzog & de Meuron
- Área: 4590 m²
- Año: 2023
-
Fotografías:Iwan Baan, Christoph Röttinger - Herzog & de Meuron

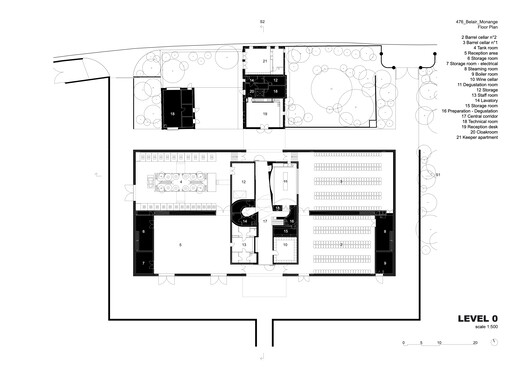
Descripción enviada por el equipo del proyecto. La bodega Bélair-Monange en Saint-Émilion está diseñada para satisfacer las necesidades futuras de la operación vitivinícola de la finca. El programa se integra de manera sostenible en el pueblo de Saint-Émilion, declarado Patrimonio de la Humanidad por la UNESCO desde 1999; el proyecto es tanto un lugar de producción como de promoción. Las cuatro zonas principales dedicadas al proceso de vinificación son: la zona de recepción de la vendimia, la sala de depósitos y las bodegas de barricas. Para la recepción de clientes privados, el proyecto incluye una sala de degustación, así como una sala de recepción que puede albergar aproximadamente a 100 personas. El proyecto es un encargo directo que continúa una relación de larga data, iniciada hace unos veinte años, entre la familia Moueix y Herzog & de Meuron. Bélair-Monange es nuestro quinto proyecto conjunto y la segunda bodega, después de Dominus Winery en California, en la que hemos trabajado juntos.

Historia. La campiña de Saint-Émilion es un territorio histórico de vino y cultura preservado en un estado cercano al de mediados del siglo XIV. La ciudad medieval alberga varias iglesias, capillas y monasterios que datan del siglo XI. Esta larga historia también está ligada al desarrollo de la viticultura en la región, introducida por primera vez por los romanos. Las características de los monumentos, la arquitectura y el paisaje -la combinación de lo construido y lo no construido, el propio terreno, los viñedos y los parques- forman un tejido cultural y urbano único.

Carácter del sitio. El emplazamiento está situado en la meseta arcillo-calcárea de la "Croix Gaudin", a un kilómetro al suroeste del centro histórico de Saint-Émilion. La meseta está definida por el límite mediterráneo y la zona circundante de laderas, crestas y valles, que ofrece vistas panorámicas sobre el valle del Dordoña. El contexto existente se compone de tres elementos característicos: la omnipresencia de los viñedos, el parque Magdelaine vecino y una casa de piedra existente, construida en 1845, que se conserva en el marco del proyecto.


Paisaje, patrimonio y arquitectura. El parque adyacente de Magdelaine se caracteriza por una materialidad y una vegetación similares a las del lugar, ya que contiene varias encinas, tilos y arces sicomoros. Vivido como una isla de frescor en un paisaje con pocos árboles, este parque marca el inicio de una secuencia de espacios arquitectónicos que definen el conjunto monolítico de Bélair-Monange. El carácter escultórico de la casa de piedra existente se refuerza al bloquear la mayoría de sus aperturas, con un relleno ligeramente retranqueado desde el exterior de la fachada. Esto permite que se proyecte una línea de sombra sobre las antiguas aperturas para no borrar completamente sus huellas, como un palimpsesto de una era pasada. Tres nuevas ventanas están cuidadosamente posicionadas en la fachada principal hacia el este para satisfacer las necesidades de la nueva configuración interior y el programa de la casa existente.

Las nuevas bodegas, ligeramente enterradas para no imponerse a la casa existente, se revelan como un monolito de concreto. Elegido por sus cualidades térmicas, el concreto permite un ambiente interior estable y templado durante todo el año, una calidad importante para los espacios dedicados al proceso de vinificación. El vínculo entre los dos monolitos minerales, uno de piedra y otro de concreto, se refuerza por el techo de concreto de la sala de recepción. Esta nueva cubierta prolonga el tejado existente del ala sur de la casa hacia los viñedos y el valle del Dordoña. El tono ocre y la superficie ligeramente texturizada de los elementos de concreto refuerzan la relación íntima entre las dos entidades. El nuevo edificio de la bodega se adapta a la presencia de la antigua casa, estableciendo un diálogo con ella en lugar de abrumarla.


En la fachada, cortes horizontales y verticales subdividen el gran volumen del nuevo edificio y permiten que la luz natural entre en la bodega principal. Las grandes puertas de madera en la fachada sur, similares a elementos de muebles independientes, evocan elementos medievales vernáculos y permiten que los espacios de trabajo se abran al exterior durante la vendimia. Las vigas de concreto del techo son un recordatorio de los surcos romanos, una técnica ancestral de la cultura de la vid de la cual ciertos vestigios aún están presentes en Saint-Émilion. Algunas de estas vigas se han vaciado parcialmente para permitir la ventilación natural y la refrigeración de los espacios de trabajo en verano.

La bodega de Bélair-Monange se compone de cuatro cuadrantes simétricos situados a lo largo de un corredor central, que es a la vez la circulación principal del proyecto y un homenaje a la arquitectura subterránea de Saint-Émilion, como se ve en las canteras y la iglesia monolítica. Las paredes y el techo de este pasillo de concreto de textura rugosa expresan el motivo inspirado en un grabado de Albrecht Dürer de 1504, "Joachim and the Angel", que también está representado en las etiquetas del primer vino producido aquí, "Château Bélair-Monange". Una amplia escalera tallada en el volumen conecta los cuatro espacios de trabajo principales: la sala de depósitos, la zona de recepción y vendimia y las dos bodegas de barricas. La sala de recepción en el nivel superior está completamente abierta al paisaje y al valle de la Dordoña.

Compromiso con el Terroir. Aprender y experimentar la viticultura directamente en el lugar contribuye al desarrollo cultural de toda la región. La bodega Bélair-Monange fue diseñada no solo para satisfacer las necesidades funcionales del personal del cliente, sino también para dar la bienvenida a visitantes de todo el mundo. El proyecto gira en torno a la creación de un vino que exprese el verdadero potencial del viñedo, con la nueva bodega reflejando la mineralidad del suelo local y el vino que se producirá entre estas paredes en los años venideros.
























