
-
Arquitectos: SAA Arquitectura + Territorio
- Área: 72 m²
- Año: 2025
-
Fotografías:Esteban Arteaga
-
Proveedores: WoodArch

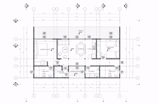
Descripción enviada por el equipo del proyecto. Este refugio de 72 m2, fue diseñado y desarrollado como parte de una solución modular y tipológica para vivienda en el sur de Chile. Refugios Australes en geografías remotas y climas fríos. Un módulo estructural-espacial, flexible y adaptable, y por tanto eficiente y sustentable, a diferentes condiciones topográficas, de asoleamiento, y vistas según los requerimientos específicos de cada terreno y entorno natural.

El refugio fue diseñado en una primera etapa con módulos panelables SIP (prefabricación y montaje), asegurando el control de calidad de estructura e instalaciones en fábrica, y en una segunda etapa con terminaciones de maderas en obra, promoviendo la calidez material y el desarrollo del oficio local.

La lógica constructiva toma el del panel de 122x244 cm como una medida modular, donde entero, medio o al tercio, es capaz de trazar los ejes constructivos del proyecto para lograr un 0% de residuos de construcción en la etapa de obra gruesa, colaborando de esta manera a mantener los entornos ecológicos limpios y saludables.


Las terminaciones exteriores en madera local nos permiten trabajar con aserraderos y productores locales, bajando la huella de carbono de traslado de materiales, permitiendo con ello además acercar el proyecto a tradiciones de oficios y de mano de obra local.

El refugio se plantea como una solución eficiente a la actual demanda de refugios u viviendas en la Patagonia chilena.











