
-
Arquitectos: Play Arquitetura
- Área: 420 m²
- Año: 2023
-
Fotografías:Jomar Bragança

Descripción enviada por el equipo del proyecto. Esta casa, situada en Casa Branca, municipio de Brumadinho, fue construida en un terreno en declive de aproximadamente 1000m2.

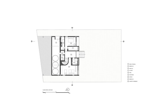
Son 420m2 de área construida, distribuidos en 2 pisos (planta baja y sótano), además del nivel de la cubierta, que es donde se accede a la casa y se encuentra la cochera descubierta.



La principal característica de este proyecto es la distribución poco ortodoxa de su programa, que se da en torno a un patio central en la planta baja - con circulaciones abiertas entre el área social y los demás ambientes - y más dos habitaciones (la suite principal y un cuarto para niños), baño social, bodega y cuarto de máquinas en el sótano.



La definición de los niveles de cada piso buscó dejar el acceso a los jardines (laterales y traseros) lo más suave y natural posible, evitando grandes movimientos de tierra. Además, la ubicación del área social más al fondo del nivel de la planta baja se benefició no solo del patio creado en este mismo nivel, sino también de una hermosa vista del paisaje circundante.

La estructura de la casa es mixta - de concreto y metálica. En la planta baja, parte de la casa está cubierta con losas planas y tiene un techo más bajo (2.5m), mientras que la otra parte - el área social - está bajo una losa en forma de bóveda, dando mayor amplitud al espacio interno y destacándola volumétricamente.

Toda la carpintería y herrería fueron detalladas por la oficina; ya la decoración fue hecha por los propios clientes, que querían, además de hacerlo poco a poco, un resultado más espontáneo.





















