
-
Arquitectos: Jacobsen Arquitetura
- Área: 1296 m²
- Año: 2024
-
Fotografías:Fernando Guerra + Fran Parente

Descripción enviada por el equipo del proyecto. Localizada a orillas de un canal en la ciudad de Paraty, en Río de Janeiro, la Residencia BRM se disuelve en la paleta de colores abundante de la naturaleza circundante. Diseñada para una familia que adora recibir amigos, la casa evoca, a través de sus materiales, el espíritu del verano: el brillo del sol, la arena de la playa y la frescura del mar.

El acceso a la residencia puede ser terrestre (por la fachada de la calle) o por mar (a través del muelle). Al llegar por la entrada principal, el visitante es bañado por la luz natural que entra a través de largos cortes en el techo de madera, y puede comprender visualmente todo el concepto del proyecto: desde la concepción, nuestra cliente siempre fue muy participativa y certera en su visión. Ella quería una casa en tonos claros, que trajera referencias tropicales no solo en la arquitectura, sino también en la elección de los colores, texturas y detalles. Juntos, optamos por el uso de una madera y un piso en tono más claro, lo que trajo una ligereza visual a la residencia.


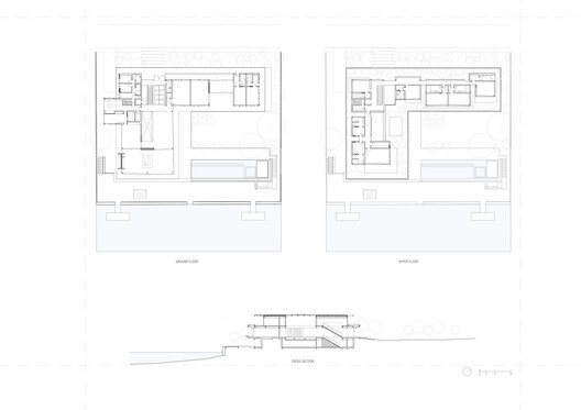
Dividido en dos niveles, el programa se distribuye de la siguiente manera: en la planta baja, una generosa área social – con sala de estar, comedor, terraza gourmet, piscina, gimnasio y dos salas íntimas, además de las suites de huéspedes. Un jardín interno funciona como transición entre la sala de estar y el comedor, que a su vez se abren a la zona exterior y al canal.

En el piso superior están las suites de la familia. Una losa ajardinada permitió la creación de una terraza, que puede ser accedida por la circulación común o por la suite principal, y cuya privacidad está garantizada por un cuidadoso paisajismo.

Las fachadas de la casa están envueltas en madera accoya clara, mientras que los brises de piedra ayudan en la protección solar. Con una implantación en L, buscamos orientar la vista hacia el canal y las montañas circundantes. Con el objetivo de generar dinamismo espacial, diseñamos volúmenes independientes y deliberadamente desalineados, contribuyendo a la privacidad de los huéspedes. Una cubierta con estructura en malla cuadrada unifica los volúmenes, en la cual se diseñaron aleros perforados para ser eventualmente cubiertos por enredaderas.

Es importante mencionar el trabajo muy cercano y extremadamente minucioso que fue desarrollado por el equipo de interiores y decoración junto con la cliente para la definición de cada pieza de mobiliario, cada tejido, cada color y cada textura. La Residencia BRM es como una joya, esculpida por muchas manos.
























