Caledonian Somosaguas / studio mk27

Caledonian Somosaguas / studio mk27 - Imagen 2 de 65Caledonian Somosaguas / studio mk27 - Imagen 3 de 65Caledonian Somosaguas / studio mk27 - Imagen 4 de 65Caledonian Somosaguas / studio mk27 - Imagen 5 de 65Caledonian Somosaguas / studio mk27 - Más Imágenes+ 60

  • Categoria: Vivienda Colectiva
  • Arquitecto Local: Caledonian. Henrique López Granado
  • Equipo De Diseño: Carlos Costa, Elisa Friedman, Giovanni Meirelles, Laura Guedes Mariana Simas
  • Equipo Del Estudio: Carolina Castroviejo, Diana Radomysler, Eduardo Chalabi, Eduardo Glycerio, Eduardo Gurian, Elisa Friedmann, Gabriel Kogan, Lair Reis, Luciana Antunes, Marcio Tanaka, Maria Cristina Motta, Oswaldo Pessano, Renata Furlanetto, Samanta Cafardo
  • Texto: Edwin Heathcote
  • Landscape: Isabel Duprat
  • Contratista: Caledonian
  • Ciudad: Madrid
  • Pais: España
Más informaciónMenos información
Caledonian Somosaguas / studio mk27 - Imagen 2 de 65
© Fernando Guerra | FG+SG

¿Densidad o diafanidad? ¿Intensidad o tranquilidad? ¿Público o privado? ¿Urbano o suburbano? La problemática a la hora de diseñar viviendas en la periferia de la ciudad es conseguir sintetizar todos estos conceptos aparentemente opuestos - no elegir entre ellos sino saber escoger pequeñas dosis de todos ellos para crear un nuevo coctel familiar y a la misma vez extranjero, cotidiano y exótico.

Caledonian Somosaguas / studio mk27 - Imagen 25 de 65
© Fernando Guerra | FG+SG

Caledonian Somosaguas / studio mk27 - Imagen 52 de 65
© Fernando Guerra | FG+SG

El diseño de Somosaguas, un nuevo proyecto de viviendas en los límites de Madrid, es la primera incursión europea en vivienda del estudio brasileño MK27. La intención fue la de crear una suerte de hábitat, un nuevo barrio en el que las viviendas están esparcidas libremente alrededor de una red de espacios públicos - calles, plazas, parques, una piscina - y en el que las zonas comunes ocupan tanta área como las viviendas mismas. Se trata de un diseño para un tipo de vida pública - un guiño a la propensión española a vivir en la ciudad y ocupar los espacios urbanos más que los de sus propios hogares (que permanecen como lugares para dormir y tomar siestas).

Caledonian Somosaguas / studio mk27 - Imagen 37 de 65
© Fernando Guerra | FG+SG

Las tipologías de las viviendas se combinan de la misma manera que lo hace el propio proyecto de urbanización. Existe un deliberado toque a pueblo en su composición - los muros blancos y los bloques cúbicos. Hay un poco de las Siedlung de la Bauhaus - el proyecto de viviendas establecido como modelo en la construcción y la vivienda contemporánea - la mínima y contenida paleta de materiales, su estética y funciones fueron un avance de cómo una vida moderna podría llegar a ser. Hay, también, un poco de la lánguida arquitectura brasileña y de la relajación lujosa mezclada con un toque de lugar de vacaciones, la sensación de un lugar apartado y de retiro.

Caledonian Somosaguas / studio mk27 - Imagen 9 de 65
© Fernando Guerra | FG+SG

En la complejidad de su composición, la estratificación del paisaje y el tejido de una red de espacios públicos al aire libre, emerge la arquitectura. Las casas son alargadas - atenuadas para que sus paredes comiencen a definir las emergentes calles en lugar del paisaje “staccato” de cubos individuales. Sin embargo, una serie de intervenciones, motivos repetitivos y dispositivos urbanos y paisajísticos aparecen para evitar que los espacios entre las casas se conviertan en callejones y así, romper demasiada regularidad. Los pliegues, los obstáculos, los escalones, las terrazas y el verdor crean una variedad de espacios suburbanos y un lenguaje interno coherente que, en teoría, podría expandirse y replicarse, que es exactamente lo que pretenden los arquitectos, haciendo del conjunto una especie de prototipo de programa desplegado, un modelo que se vuelve más eficiente y más práctico a medida que la experiencia del proyecto y las viviendas crece.

Caledonian Somosaguas / studio mk27 - Imagen 3 de 65
© Fernando Guerra | FG+SG

Igualmente importante es la separación del tráfico y los peatones. El conjunto podría parecer un proyecto de viviendas de dos pisos, pero de hecho se basa en una sección transversal de tres pisos con una planta completa de aparcamientos subterráneos. Cada vivienda tiene acceso interno a su espacio de estacionamiento, conectado individualmente a la planta de aparcamiento, la cual es invisible. Es un sistema que tiene las ventajas de un garaje privado, pero sin desfigurar los frentes de las viviendas ni obstruir el nivel de la calle con grandes extensiones de puertas de garaje, entradas y tráfico.

Caledonian Somosaguas / studio mk27 - Imagen 13 de 65
© Fernando Guerra | FG+SG

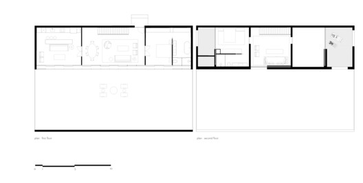
Las viviendas parecen bastante modestas en dimensiones, con un ancho de solo 5,5 metros (todas las viviendas tienen el mismo ancho aunque el largo varía). Sin embargo, interiormente sorprenden por su complejidad de espacios interconectados y configuración de llenos y vacíos, muros y aperturas. Las plantas bajas son transparentes - acomodando las funciones públicas de la vida - con paredes completamente acristaladas abiertas a patios que reflejan los espacios interiores de tal modo que estas amplias zonas parecen fluir sin interrupciones hacia el espacio exterior. En las casas más pequeñas, una habitación alargada alberga las funciones de cocina, comedor y sala de estar de la casa. Dicha habitación puede subdividirse o permitir que unos espacios fluyan con los otros y así conseguir dar una impresión de espacio infinito.

Caledonian Somosaguas / studio mk27 - Imagen 41 de 65
© Fernando Guerra | FG+SG

En las viviendas de mayor dimensión, el espacio público también se extiende a la parte superior a través de un vacío que expande el área de la ventana y que aparece como una abertura a doble altura. Esto permitirá que el follaje de los árboles incida en el interior de la vivienda al igual que el suelo parece robar espacio del exterior. Una galería en la zona superior ocupa el volumen cúbico, introduciendo una escala más íntima a los espacios inferiores y superiores, y un contraste con la verticalidad del plano de la ventana. Escaleras con peldaños abiertos y espacios diáfanos que aprovechan al máximo las dimensiones internas, dejando el espacio ininterrumpido.

Caledonian Somosaguas / studio mk27 - Imagen 12 de 65
© Fernando Guerra | FG+SG

La superficie superior de esta caja acristalada se convierte en una terraza, de modo que cada plano horizontal construido se utiliza al máximo, convirtiéndose cada cubierta en una nueva habitación. Esa sensación de espacio exterior que se fusiona con el interior se ve intensificada por algunas terrazas definidas por muros con aberturas, como las cubiertas de Le Corbusier o Barragán. 

En la parte superior, se coloca un cubo más privado y protegido. Así, se consigue proteger las áreas de dormir. Sus paredes totalmente opacas que miran hacia los patios y ventanas laterales perforadas consiguen enfatizar la sensación de un espacio cerrado, fuertemente protegido y más íntimo. El juego de transparencia y solidez entre el suelo y los primeros pisos se convierte, en cierta manera, en el lenguaje arquitectónico que determina todo el vecindario, un juego de malabarismo con el bloque sólido y una delicada y atenuada capa entre habitaciones interiores y exteriores. Esta sutil inversión y combinación de opuestos crea la imagen visual y la identidad del proyecto, las viviendas sutilmente diferentes pero compartiendo el mismo vocabulario básico. No hay cacofonía de balcones y protuberancias, ya que todas las terrazas están incluidas dentro de los volúmenes generales de la estructura. No hay nada extraño. La naturaleza mínima de estos medios arquitectónicos produce una sensación de lugar y un paisaje urbano singularmente restringido en el que todos los elementos tienen algo que ver, todos se definen por su función y no por su estilo. La simplicidad del lenguaje y su coherencia interna es también un dispositivo destinado a construir un vocabulario básico que sea lo suficientemente flexible como para adaptarse a las diferentes necesidades, una construcción modular basada en una grilla de 1.25m que permite múltiples variaciones dentro del mismo lenguaje arquitectónico. Los cuatro tipos básicos de viviendas no son de unas dimensiones súper lujosas pero, variando entre 94-230 metros cuadrados, estas casas cubren los requisitos para viviendas familiares. Las casas están planeadas de tal manera que puedan ser ubicadas en el lugar con una densidad sorprendente. Madrid es una ciudad densa e intensa con una población de aproximadamente 80 personas por hectárea. En Somosaguas, un barrio que se siente relajado, tranquilo y muy natural, la densidad demográfica es de 114 personas por hectárea.

Caledonian Somosaguas / studio mk27 - Imagen 45 de 65
© Fernando Guerra | FG+SG

En lugar de estar separadas unas de otras creando una aglomeración sin ningún tipo de orden, las viviendas están íntimamente entretejidas y los medios arquitectónicos se utilizan para crear privacidad y un sentido de vivienda individual: los jardines del patio protegidos, las terrazas con paredes amuralladas, las plantas superiores sólidas, etc.

Caledonian Somosaguas / studio mk27 - Imagen 42 de 65
© Fernando Guerra | FG+SG

Y en el centro de todo esta el agua. El espacio en el que se puede esperar encontrar un centro urbano,una plaza definida por la iglesia y el ayuntamiento, el mercado o la topografía, se entrega, sin embargo, a los placeres comunes de la piscina. Es, en cierto modo, una negación del núcleo sólido, una renuncia al corazón urbano del asentamiento mediterráneo en favor de algo menos sustancial. Sin embargo, coloca una cierta actividad comunitaria en el centro del esquema, una sensación de que cada casa se alimenta de algo más grande que sí mismo en lugar de tratar de crear su propia utopía vallada y autónoma. Si algo que perturba son las vallas y las paredes que se ven tan claramente en las fotos aéreas. Las calles y espacios fluyen tan libremente que separarlos de su entorno parece duro y contrario al espíritu del plan.

Caledonian Somosaguas / studio mk27 - Imagen 18 de 65
© Fernando Guerra | FG+SG

El problema que tienen estos proyectos de viviendas en la periferia de la ciudad es que se vuelven fácilmente defensivos, demasiado privados y, al aislarse, renuncian a la capacidad de convertirse en lugares genuinamente públicos. Quizás a medida que el vecindario se desarrolle y se expanda, las calles creadas aquí comenzarán a tejerse y a insinuarse en el tejido emergente que lo rodea, como los zarcillos de una planta trepadora. La naturaleza sin forma de los alrededores hace que este sea un experimento incierto, una especie de asentamiento amurallado esperando que el vecindario se ponga al día antes de que pueda revelarse. Su éxito dependerá de cómo se use y cómo crezca la ciudad a su alrededor. Pero como semilla, como mecanismo para catalizar la vida comunitaria y de espíritu generoso, es una posibilidad fascinante y elegante. 

Caledonian Somosaguas / studio mk27 - Imagen 6 de 65
© Fernando Guerra | FG+SG

Galería del Proyecto

Ver todoMostrar menos
Sobre esta oficina
Cita: "Caledonian Somosaguas / studio mk27" [Caledonian Somosaguas / Suzana Glogowski + Diana Radomysler + studio mk27] 30 dic 2017. ArchDaily México. Accedido el . <https://www.archdaily.mx/mx/886452/caledonian-somosaguas-studio-mk27-marcio-kogan-plus-suzana-glogowski> ISSN 0719-8914

Has seguido tu primera cuenta!

¿Sabías?

¡Ahora recibirás actualizaciones de las cuentas a las que sigas! Sigue a tus autores, oficinas, usuarios favoritos y personaliza tu stream.