Сhampionat.com / Nefa Architects

Сhampionat.com / Nefa Architects - Imagen 2 de 26Сhampionat.com / Nefa Architects - Imagen 3 de 26Сhampionat.com / Nefa Architects - Imagen 4 de 26Сhampionat.com / Nefa Architects - Imagen 5 de 26Сhampionat.com / Nefa Architects - Más Imágenes+ 21

  • Arquitectos: Nefa Architects
  • Área Área del proyecto de arquitectura Área:  400
  • Año Año del Proyecto de arquitectura Año:  2016
  • Fotógrafos
    Fotografías:Ilya Ivanov
  • Proveedores Marcas y productos usados en este proyecto de arquitectura
    Proveedores:  Flos, Artemide, BONALDO, Linea Light Group, Loft, Planlicht, Prooff, Roche Bobois, Tolix, Vitra
  • Cliente: Web portal Сhampionat.com (Чемпионат.com )
  • Arquitecto A Cargo: Dmitry Ovcharov
  • Equipo De Diseño: Dmitry Ovcharov, Elena Potemkina
  • Arquitectos: Maria Nasonova, Margarita Kornienko
  • Ingeniero A Cargo: Sergey Kurepin
  • Visualización: Dmitry Tridenov, Rustam Yusupov
  • Diseño De Iluminación: Varvara Shchetinina (THIRTEEN STUDIO)
  • Gestión De Proyecto: Daria Turkina, Maria Boyko
  • Contratista Principal: «Шафран»(Shafran)
  • Ciudad: Moscow
  • Pais: Rusia
Más informaciónMenos información
Сhampionat.com / Nefa Architects - Imagen 2 de 26
© Ilya Ivanov

Descripción enviada por el equipo del proyecto. El portal web Championat.com es uno de los principales sitios web de transmisión de deportes de Rusia, centrado en la cobertura en vivo de los eventos deportivos.

Championat.com pertenece al gran holding de medios Rambler&Co, y la oficina editorial se trasladó a Danilovskaya Manufactura -anteriormente una fábrica- para unirse a otras subdivisiones de la empresa de medios con sede en este loft.

Сhampionat.com / Nefa Architects - Imagen 4 de 26
© Ilya Ivanov
Сhampionat.com / Nefa Architects - Imagen 21 de 26
vía Nefa Architects
Сhampionat.com / Nefa Architects - Imagen 15 de 26
© Ilya Ivanov

El objetivo comercial principal era crear un espacio de trabajo eficiente y colaborativo para un equipo de periodistas con una idea vívida basada en un tema.

Сhampionat.com / Nefa Architects - Imagen 9 de 26
© Ilya Ivanov
Сhampionat.com / Nefa Architects - Imagen 22 de 26
vía Nefa Architects
Сhampionat.com / Nefa Architects - Imagen 13 de 26
© Ilya Ivanov

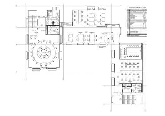
La oficina editorial de Championat.com ocupa dos plantas de un edificio del siglo XIX de cuatro plantas. El área de recepción incluye un mostrador de información con paneles multimedia integrados adaptados para mostrar contenido original sobre juegos y eventos y una amplia y cómoda sala de estar.

Сhampionat.com / Nefa Architects - Imagen 19 de 26
© Ilya Ivanov

Las principales zonas funcionales (áreas de trabajo y salas de reuniones) están ubicadas en el segundo piso. El espacio abierto permite una mejor comunicación e intercambio de información entre compañeros de trabajo.

Сhampionat.com / Nefa Architects - Imagen 14 de 26
© Ilya Ivanov

Una sala de monitoreo con una gran mesa en forma de anillo y una instalación de video ubicada justo debajo del techo en el medio es el "núcleo" ideológico de la oficina. Los escritorios de los altos directivos también se colocan en un espacio abierto en el centro geométrico de la oficina para que el proceso de comunicación sea lo más efectivo y rápido posible. También hay una zona de relajación y un mini punto de café en el segundo piso.

Сhampionat.com / Nefa Architects - Imagen 12 de 26
© Ilya Ivanov

Formalmente, un comedor ubicado en el cuarto piso pertenece a Gazeta.ru -otro departamento de Rambler&Co, diseñado por Nefa Architects-, pero ambos equipos lo tienen a su disposición.

Сhampionat.com / Nefa Architects - Imagen 5 de 26
© Ilya Ivanov

De acuerdo con las especificaciones del proyecto, los arquitectos diseñan una sala multifuncional para conferencias, reuniones y presentaciones. La sala está equipada con los más modernos equipos técnicos y audiovisuales.

Сhampionat.com / Nefa Architects - Imagen 18 de 26
© Ilya Ivanov

Trabajando en el concepto de diseño, los autores decidieron llevar la estética de un gimnasio a los interiores, pero teniendo en cuenta el fondo de las viejas paredes de ladrillo rojo, les dieron un aire de un gimnasio escolar en algún lugar de Italia como el de Fellini, la película Amarcord, por ejemplo.

Сhampionat.com / Nefa Architects - Imagen 6 de 26
© Ilya Ivanov

Los arquitectos utilizaron principalmente materiales naturales como ladrillo, madera, metal y vidrio en la decoración interior del espacio de oficinas. Muchos muebles de oficina fueron diseñados especialmente por el estudio y producidos en talleres locales.

Galería del Proyecto

Ver todoMostrar menos
Sobre esta oficina
Cita: "Сhampionat.com / Nefa Architects" [Сhampionat.com / Nefa Architects] 16 feb 2022. ArchDaily México. Accedido el . <https://www.archdaily.mx/mx/976751/shampionaom-nefa-architects> ISSN 0719-8914

Has seguido tu primera cuenta!

¿Sabías?

¡Ahora recibirás actualizaciones de las cuentas a las que sigas! Sigue a tus autores, oficinas, usuarios favoritos y personaliza tu stream.