
-
Arquitectos: BTE-ARQ
- Área: 1480 m²
- Año: 2023
-
Fotografías:Federico Kulekdjian
-
Proveedores: FV, Ilva, Peisa, Roca

Descripción enviada por el equipo del proyecto. Ubicado en el consolidado barrio residencial de Güemes, en la ciudad de mar del plata, provincia de Buenos Aires. El Edificio BTE-09 Avellaneda se integra armónicamente a un entorno próximo al corredor gastronómico de las calles Olavarría y Güemes. Implantado en un lote de 10,40 metros de frente por 32 metros de fondo, este proyecto destaca por su diseño funcional y su estética contundente, desarrollada en cinco niveles.


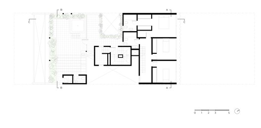
En la planta baja, el acceso peatonal se resuelve mediante un hall que fusiona vegetación interior y exterior, creando una transición fluida. El ingreso vehicular, por su parte, se materializa a través de una rampa levadiza que conecta con cocheras distribuidas entre el subsuelo y un medio nivel. Además, se incorpora un espacio de oficina con vistas a la calle, equipado con área de trabajo, estar y baño en el subsuelo.

Los niveles superiores, del primero al cuarto piso, se organizan dos unidades de tres ambientes por planta: una orientada al frente y otra al contrafrente. Estas se articulan mediante un núcleo de circulación central semicubierto que incluye un pulmón de 3,60 metros por lado, asegurando la ventilación natural de las cocinas. En el quinto y sexto nivel, se desarrollan departamentos de mayor superficie ofrecen amplitud y exclusividad para quienes buscan un diseño más generoso.

El hormigón armado visto protagoniza la materialidad del edificio, definiendo tanto sus fachadas como sus interiores. Su textura cruda y robusta se equilibra con la vegetación presente en canteros distribuidos en todas las fachadas y espacios comunes. Esta integración dialoga con los árboles del entorno, mientras la fachada, alineada en línea municipal, incorpora plantas en todos sus niveles, reforzando su carácter orgánico.



Las aberturas de piso a techo, presentes en todos los ambientes, optimizan la entrada de luz natural y favorecen la ventilación cruzada. En el interior, la madera en suelos y mobiliario aporta calidez, contrastando con la solidez del hormigón. Dormitorios y estar-comedor disfrutan de aperturas al frente y contrafrente, garantizando vistas despejadas hacia la calle y el pulmón de manzana.

El BTE-09 Avellaneda se erige como un ejemplo de arquitectura contemporánea en Güemes, Sus seis niveles albergan unidades amplias y exclusivas, con aberturas que maximizan luz y ventilación. La materialidad robusta del hormigón visto se suaviza con madera los tonos cálidos de la madera y la propia vegetación integrada, dialogando con el entorno y ofreciendo una propuesta residencial que equilibra estética y el diseño funcional mejorando de esta manera la habitabilidad de todas las unidades funcionales que se desarrollan en el edificio.






































