
-
Arquitectos: Azimut 180°
- Área: 138 m²
- Año: 2024
-
Fotografías:Josefina Quezada
-
Proveedores: Masisa, Cutek, Deceuninck, Droptec, Linolie, MK, WoodArch

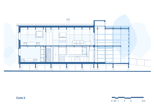
Descripción enviada por el equipo del proyecto. La Casa Palenque se ubica en Isla San Francisco a 7 kms de Valdivia. Es un proyecto que combina funcionalidad y estética, con un volumen de 18 x 6,5 metros suspendido en pilotes. Con techos a dos aguas de 45 grados y una altura máxima de 7 metros, esta edificación de 138,5 m² está diseñada bajo los estándares del DFL2, ofreciendo flexibilidad para futuras modificaciones en su planta libre.

Concepto y Diseño. La casa presenta una dualidad arquitectónica. Por un lado, su fachada oriental refleja un estilo tradicional agalponado en madera, con un diseño opaco que incorpora ventanas estratégicamente ubicadas. En contraste, la fachada poniente se abre con amplios paneles de vidrio, creando un invernadero que no solo funciona como un acceso luminoso y espacio multiuso, sino que también actúa como un elemento de calefacción por radiación solar, capturando el calor del sol para contribuir al confort térmico del hogar. Este invernadero ofrece un espacio exterior techado y protegido, ideal para las largas lluvias de la región.

Distribución de Espacios. Primer Piso: La entrada al invernadero conduce a un espacio abierto que alberga el living, comedor y cocina. Dos dormitorios orientados al este, un baño completo y varias despensas complementan este nivel.

Segundo Piso: Este nivel está centrado entre los tijerales, con una habitación principal que se alinea sobre los dormitorios inferiores. Un baño completo y un área adicional, con vistas al living, puede servir como sala de estar o cuarto dormitorio.

Materialidad y Sostenibilidad. La casa, construida por Madre Tierra con apoyo de Azimut 180, utiliza pino radiata normado MGP-10 y madera laminada prefabricada, con cortes precisos realizados por robot. Los muros exteriores están hechos con paneles de OSB aislados con más de 15 cmS de lana de vidrio, superando la normativa térmica del PDA de Valdivia. El revestimiento exterior es de pino marítimo local en fachada ventilada, aportando a la sostenibilidad.


Interiormente, se protege la madera con aceite de linaza, natural y no tóxico, dejando la mayoría de las superficies al natural y aplicando pigmentos minerales en algunos elementos. La cocina a leña abastece calefacción y agua caliente mediante un sistema de termosifón, complementado con termo eléctrico en verano.

Se emplean termopaneles y vidrios laminados para eficiencia energética, y el montaje fue realizado con constructores locales, reforzando el vínculo con la comunidad y la economía regional.

Conclusión. Casa Vivero no solo es un hogar, sino un espacio que refleja un compromiso con la tradición y la innovación, armonizando con su entorno natural en Isla San Francisco, en la comuna de Valdivia.
































