

Descripción enviada por el equipo del proyecto. Desarrollar el proyecto y la ejecución de la cubierta en el Edificio Amaralina fue una valiosa experiencia de aprendizaje. Cuando la clienta adquirió el inmueble y nos contrató para llevar a cabo el proyecto, nos planteó la idea de realizar una reforma que potenciara la vista hacia el arbolado de la Plaza Rotary, en São Paulo.


Una vez elaborado el proyecto ejecutivo y comenzada la demolición, se hizo evidente la fragilidad de la estructura existente: construida en múltiples etapas y sin cálculo estructural, presentaba riesgos importantes. Junto con el ingeniero Ricardo Kerr, que nos ha acompañado desde el inicio, decidimos demoler completamente el apartamento y construir una nueva estructura, respetando la volumetría original.


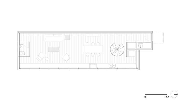
Regresamos a la mesa de dibujo y replanteamos el proyecto desde cero, esta vez como un pabellón ubicado en un terreno elevado. Optamos por el acero como material para la nueva estructura, debido a la facilidad de montaje en este sitio de construcción tan particular. La modulación frecuente de pilares y vigas fue una estrategia para reducir el peso de las piezas y distribuir mejor las cargas en las vigas perimetrales del edificio. El proyecto se orientó bajo principios muy racionales, resultando en un espacio libre y flexible para la ocupación.


Además de los baños y la escalera, los únicos elementos fijos son las bancadas de concreto ubicadas junto a los marcos de las ventanas en ambos pisos. Clô Azevedo aportó vida al apartamento a través de la decoración y el paisajismo, creando un contraste con la neutralidad de la estructura. Finalmente, Pedro Kok realizó un registro fotográfico detallado que documenta toda esta historia.
