
-
Arquitectos: JM Architecture
- Área: 250 m²
- Año: 2023
-
Fotografías:Jacopo Mascheroni
-
Proveedores: AQUAPANEL, B&BItalia, Casalgrande Padana, ECLISSE, Flaminia, Flexform, Gaboli, Kaldewei, Lombardo, Metra, Oty Light, Silent Gliss, WOODN

Descripción enviada por el equipo del proyecto. Villa Dellago es una residencia privada situada en el entorno natural de la costa este del Lago de Garda, en Italia.


La morfología del terreno se convierte en la matriz que guía las directrices del proyecto: el edificio se emplaza sobre una terraza natural seleccionada dentro de la topografía del sitio, paralela al lago, y se desarrolla en un área compacta para minimizar las excavaciones y los movimientos de tierra.

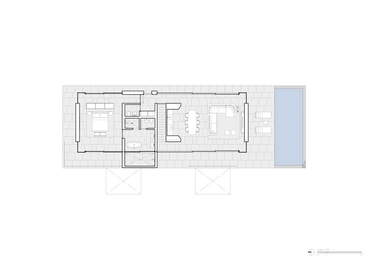
Se trata de un pabellón de una sola planta, con la zona de estar ubicada en un extremo y el dormitorio principal en el otro. Los espacios de servicio se sitúan en el centro, donde una escalera conduce a las áreas subterráneas, diseñadas a partir de un cuidadoso estudio de la pendiente natural del terreno. Dos amplios patios abiertos hacia el lago permiten que las habitaciones del nivel inferior gocen de luz natural y vistas, al tiempo que se integran con la topografía moldeada del lugar.


Las fachadas de la planta principal son en su mayoría acristaladas, lo que permite que todas las habitaciones disfruten de amplias vistas hacia el lago y convierte al pabellón en un volumen ligero y permeable. El techo plano se extiende en voladizo por los cuatro lados, y el volumen apenas supera los tres metros de altura, generando un equilibrio preciso entre luz y sombra, mientras la casa se integra plenamente con la vegetación circundante. La superficie del techo ha sido concebida con el mismo cuidado que una fachada: los elementos técnicos se han ocultado y se ha revestido con material cerámico en un tono gris claro.

La única parte cerrada de la fachada corresponde al baño principal en el nivel superior, que, no obstante, recibe luz natural a través de un patio abierto que extiende el espacio interior hacia una zona húmeda exterior. Toda esta sección está revestida con lamas de compuesto plástico y madera, cuyo acabado en tono roble evoca los matices del paisaje natural circundante. Un marco de aluminio blanco recorre la base del pabellón, delineando su perímetro. En el lado sur de la plataforma, se ha integrado una piscina dentro de la proyección del contorno del edificio.

Los interiores incorporan mobiliario fijo completamente hecho a medida, como la boiserie de roble que reviste las paredes, los lavabos de mármol en los baños o la cocina abierta, que integra diversos equipos técnicos en su estructura. Los muebles parecen flotar dentro de los espacios, acentuando la luminosidad y reforzando la estética contemporánea del interior. La privacidad se regula mediante persianas enrollables retráctiles, perfectamente integradas en el perímetro del techo, que permiten filtrar las vistas desde el exterior sin interrumpir la limpieza formal del conjunto.

El jardín ha sido diseñado siguiendo las líneas y niveles naturales del terreno, con una vegetación que responde a la orografía del sitio: césped en las terrazas planas y especies específicas para las pendientes más pronunciadas. Los olivos nativos y los altos cipreses preexistentes fueron preservados e incorporados de manera destacada en la composición del proyecto. En esta propuesta, la vegetación tiene un papel tan fundamental como la arquitectura en la creación de confort y bienestar para el cliente.





















