
-
Arquitectos: Lateral arquitectos
- Área: 300 m²
- Año: 2023
-
Fotografías:Ramiro Sosa

Descripción enviada por el equipo del proyecto. La vivienda se emplaza en un terreno de 20,00m x 35,00m en un barrio residencial de baja densidad y grandes áreas verdes. En busca de una mayor intimidad familiar, el planteo es claramente introvertido, volcándose con importantes transparencias hacia el verde interior.


El programa se distribuye en dos "L" superpuestas priorizando las mejores visuales y orientaciones, y se completa con un quincho al fondo del terreno. Una sucesión de patios, de diferentes características, ordena las funciones. En el ingreso, una primera zona abierta opera de filtro hacia la calle. En el centro de la casa, otro patio separa las áreas íntimas de las sociales. Hacia atrás, un último patio de mayores dimensiones, extendido y verde, aísla la casa del sector del quincho.

La vivienda se dispone exenta de los límites medianeros, permitiendo que el verde del exterior la
envuelva y dilate los espacios interiores. Los ambientes se disponen en torno a un distribuidor en doble altura, en continuidad con el patio central y coronado con un gran lucernario sobre la escalera, que articula horizontal y verticalmente las dos plantas.

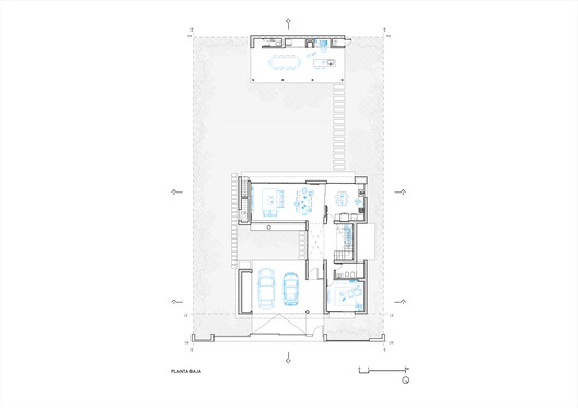
En planta baja, hacia el frente, se ubica un local polivalente (escritorio, dormitorio de huéspedes) con el baño social. Hacia atrás, se encuentra la cocina semintegrada, el comedor y el estar conformando un bloque permeable en sentido norte sur. Hacia el norte, se resuelve con una abertura alta que, mediante un mueble bajo de hormigón y madera, se independiza visualmente de la cochera doble; y hacia el sur, protegido por un alero, se abre completamente al patio posterior.

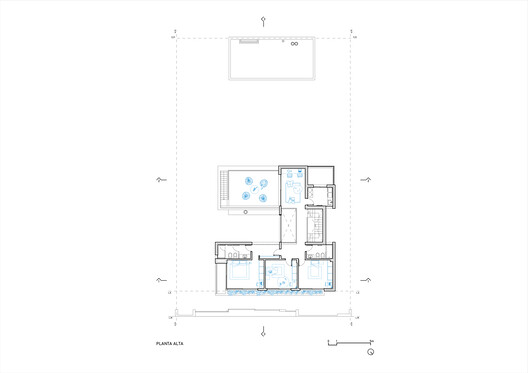
En planta alta, sobre la fachada se disponen los tres dormitorios y dos baños. En el contrafrente se organiza el lavadero con una expansión exclusiva, y un estar íntimo relacionado directamente con la terraza que, mediante una escalera exterior, se conecta al patio cerrando el circuito de recorridos de espacios interiores y exteriores.

El escalonamiento volumétrico en sentido longitudinal contempla un adecuado asoleamiento, permitiendo que la luz del norte pueda ingresar en todos los interiores en invierno. La expresión tectónica se define por materiales honestos y nobles, especialmente pensados para un buen envejecimiento y perdurabilidad de las condiciones materiales del edificio: hormigón y ladrillo a la vista en muros y cubiertas, y piedras naturales en pisos interiores y exteriores.

El interior, de paramentos blancos y madera lustrada, busca espacios limpios, claros y a la vez cálidos y acogedores. La plástica de todos ellos se manifiesta con una delicada naturalidad en la obra, dotándola de carácter, síntesis e identidad.


























