Casa Ouro Preto / Felipe Hess Arquitetos

Casa Ouro Preto / Felipe Hess Arquitetos - Imagen 2 de 20Casa Ouro Preto / Felipe Hess Arquitetos - Fotografía interior, Sala de estarCasa Ouro Preto / Felipe Hess Arquitetos - Fotografía interior, Madera, SillasCasa Ouro Preto / Felipe Hess Arquitetos - Fotografía interior, Madera, BalcónCasa Ouro Preto / Felipe Hess Arquitetos - Más Imágenes+ 15

São Paulo, Brasil
  • Categoria: Casas, Renovación
  • Colaboradores: Felipe Hess, Ana Falcão, Natan Durigan
  • Ciudad: São Paulo
  • Pais: Brasil
Más informaciónMenos información
Casa Ouro Preto / Felipe Hess Arquitetos - Imagen 6 de 20
© Fran Parente

Descripción enviada por el equipo del proyecto. La reforma reconfiguró el espacio, creando dos suites, una amplia área de estar y comedor, un escritorio que también funciona como sala de TV y el sector de servicios. La estructura original del edificio, construido en la década de 1970, facilitó la transformación, ya que la mayoría de las paredes son periféricas.

Casa Ouro Preto / Felipe Hess Arquitetos - Fotografía interior, Madera, Iluminación, Vidrio
© Fran Parente
Casa Ouro Preto / Felipe Hess Arquitetos - Fotografía interior, Madera, Mesas, Sillas
© Fran Parente

El acabado del piso divide el apartamento en tres áreas distintas. La más grande, con 140 metros cuadrados, reúne las salas de estar y comedor, destacadas por el piso de piedra caliza. En este ambiente, así como en todo el apartamento, la decoración mezcla muebles de diseño moderno y obras de arte del propietario. La mesa de comedor, firmada por Jorge Zalszupin, está acompañada por 12 sillas diseñadas por Niels Moller. Las salas están separadas por uno de los cuatro pilares centrales del edificio, que escapan de la estructura periférica. El pilar de concreto está revestido por tablones verticales de roble.

Casa Ouro Preto / Felipe Hess Arquitetos - Imagen 18 de 20
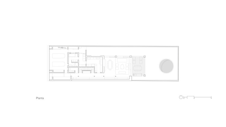
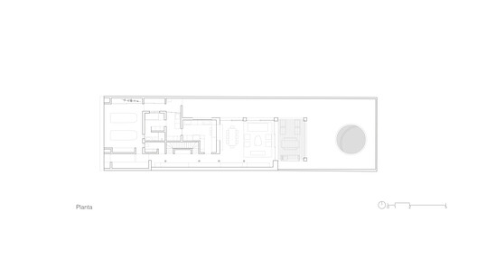
Planta Baja

El roble también domina el segundo sector del apartamento, que incluye el vestíbulo de entrada. Este ambiente está completamente revestido con madera, del piso al techo, creando una atmósfera acogedora. El vestíbulo está diseñado con tres paredes de roble, donde se esconden puertas discretas – como la de entrada, la que conecta el vestíbulo con el escritorio y las que llevan al lavabo y al sector íntimo, donde el piso de madera continúa. En el vestíbulo, un cuadro blanco de Sérgio Camargo se destaca, creando un contraste elegante con el tono oscuro de la madera. Por último, el piso de granilite blanco cubre el sector de servicios, creando un contraste sutil con el resto del apartamento.

Casa Ouro Preto / Felipe Hess Arquitetos - Imagen 2 de 20
© Fran Parente

Galería del Proyecto

Ver todoMostrar menos
Sobre esta oficina
Cita: "Casa Ouro Preto / Felipe Hess Arquitetos" [Casa Ouro Preto / Felipe Hess Arquitetos] 11 ago 2025. ArchDaily México. Accedido el . <https://www.archdaily.mx/mx/1032949/casa-ouro-preto-felipe-hess-arquitetos> ISSN 0719-8914

Has seguido tu primera cuenta!

¿Sabías?

¡Ahora recibirás actualizaciones de las cuentas a las que sigas! Sigue a tus autores, oficinas, usuarios favoritos y personaliza tu stream.