
-
Arquitectos: Felipe Hess Arquitetos

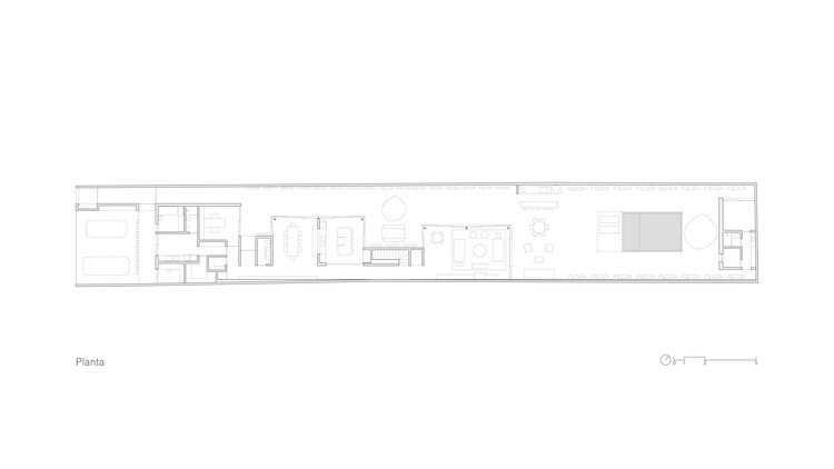
Descripción enviada por el equipo del proyecto. Implantada en un terreno estrecho y profundo de 10 x 60 metros en el Jardín Paulistano, la Casa Plaza se organiza en tres bloques intercalados por patios. Esta configuración aprovecha la geometría del lote para distribuir los espacios de manera funcional y crear áreas abiertas que amplían la entrada de luz natural y favorecen la convivencia.


El bloque frontal, cercano a la calle, concentra los espacios de apoyo: garaje, lavandería, oficina y cuarto de huéspedes. En el bloque central están la cocina, que funciona como el núcleo de la vida cotidiana, el comedor y, en el piso superior, las habitaciones de las hijas. El bloque posterior alberga la sala de estar con chimenea y, en el piso superior, la suite de la pareja. Al fondo, un jardín con piscina, parrilla, sauna y gimnasio completa el programa, con áreas de recreación integradas por un pérgola y rodeadas de vegetación y muros de piedra.


La materialidad refuerza la sensación de solidez y permanencia. Paredes con pintura mineral natural, piso de roble belga, marcos de madera y puertas revestidas en gamuza y paja componen una paleta sobria y acogedora. Mobiliario de autor y objetos del acervo familiar añaden personalidad, mientras que la carpintería a medida aporta diferentes texturas que definen la transición entre los ambientes.



El paisajismo firmado por Flávia Tiraboski incorpora enredaderas y áreas de sombra cuidadosamente posicionadas. El proyecto propone una casa larga y silenciosa, donde los espacios abiertos desempeñan un papel central en la experiencia de habitar.


























