
-
Arquitectos: Fran Silvestre Arquitectos
- Área: 1015 m²
- Año: 2024
-
Fotografías:Fernando Guerra | FG+SG
-
Proveedores: Andreu World, Kibeny, CasaDesus, Gaggenau, IMG Windows, Point, Sensem

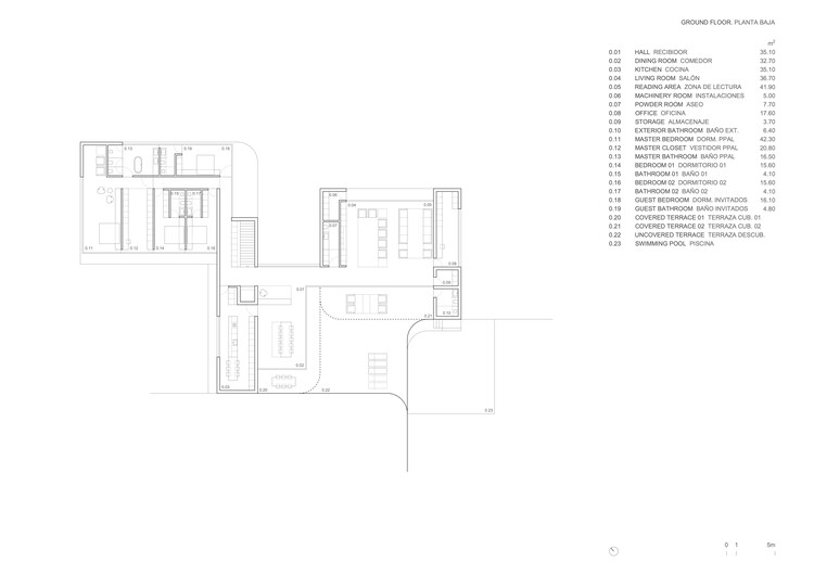
Descripción enviada por el equipo del proyecto. El proyecto cuenta con vistas diagonales hacia un lago perteneciente al campo de golf de La Moraleja en Madrid, dado que la dimensión de esta ubicación lo permitía, se propone una vivienda que se desarrolla principalmente en una sola planta. La zona de día se organiza en dos volúmenes de diferentes alturas que se desplazan entre sí para crear una terraza protegida que mira al paisaje, orientada hacia el sureste. El cuerpo principal tiene la altura de casi planta y media. Una tercera pieza alberga la zona de noche, ubicada de tal manera que dispone de su propio espacio exterior con más intimidad.


El movimiento de los tres cuerpos edificados configura un patio de acceso, orientado al norte, que dota de identidad al recorrido de entrada. La geometría tiene una función estructural y permite liberar de soportes las vistas hacia el paisaje, así quizás los espacios puedan ser perfectibles en el futuro, para nuevos usos y usuarios.



Igual que los Inuit y otros pueblos árticos tienen, según los lingüistas, más de cuarenta palabras para designar la nieve, en este proyecto nos propusieron encontrar una gama muy concreta y amplia de blancos, con matices cálidos, que aglutinan desde una piedra natural de Colmenar, pasando por madera de fresno, que existe en los bosques de Madrid, distintos tipos de latón, con colores próximos al 9016 y temperaturas de iluminación que tienden a los 2.700K, buscando una heterogeneidad integrada, que probablemente ayudará a percibir de forma calmada estos espacios domésticos.


En la planta inferior se ubican los espacios para cuidar el cuerpo, la piscina, el gimnasio y otros usos complementarios que se iluminan mediante un lucernario. Cada volumen presenta una arista redondeada, generando así una lectura dinámica. Estos elementos curvos se ubican en los espacios libres de las terrazas, lo cual facilita su construcción y permite que todos los interiores sean ortogonales.


Siempre nos fascinó esta estrategia de la obra de Andreu Alfaro, donde, en algunas de sus obras, la relación entre la recta y la curva produce un nudo continuo en el que la mirada parece fluir de un elemento a otro. Buscábamos raptar este espacio de la escultura de Alfaro, como diría Maderuelo. Por ello, la parte principal de la casa se convierte en una suerte de recorrido continuo en el que la piscina se transforma en la terraza, la cual se integra en las fachadas de los volúmenes edificados, y cerrando nuevamente el bucle en la piscina. Esta actitud enfatiza una de las muchas funciones de la vivienda, la de disfrutar observándola.



































