
-
Arquitectos: MONOBLOCK
- Área: 3500 m²
- Año: 2023
-
Fotografías:Javier Agustin Rojas

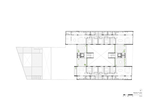
Descripción enviada por el equipo del proyecto. En un lote de 25 metros de frente en el barrio residencial de Núñez, en Buenos Aires, se emplaza el edificio de viviendas de cuatro plantas fuertemente integradas con los espacios exteriores, construido en hormigón armado, introduciendo la idea de casas en altura.


El proyecto toma como punto de partida las dimensiones del lote para organizar las viviendas en torno a un patio central, buscando recuperar esa vieja tradición de la ciudad. La planta baja libre está definida por grandes columnas monolíticas de hormigón lavado que conduce a los palieres y a una casa en el fondo del terreno, atravesando un jardín frondoso y una arboleda que se encuentra en el fondo del terreno. Los núcleos de escaleras abiertas a cada lado del patio dan acceso a cada unidad.

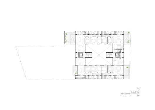
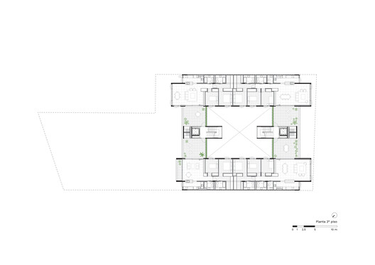
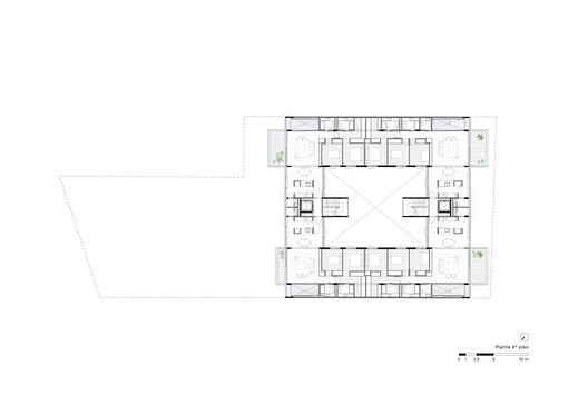
El patio organiza todas las circulaciones comunes y los espacios de las viviendas. Las habitaciones se abren al jardín central, preservando la condición de silencio y vistas interiores. Hacia el frente y contrafrente la transparencia de las áreas sociales vincula el patio con la calle y los jardines traseros. En las plantas impares el ingreso a las unidades se da a través de sus expansiones exteriores, reforzando la idea de estar accediendo a una casa más que a un departamento. En los pisos pares ese esquema se invierte, con espacios sociales que son pasantes que tienen vistas al patio y a los exteriores, con expansiones proyectándose tanto al frente como al contrafrente. Las viviendas en la última planta tienen acceso a terrazas privadas en la azotea del edificio.


Por último, hacia el final de la parcela se sitúa una vivienda en planta baja con su propio jardín, acceso y expansión social; un patio interior organiza las circulaciones y las vistas de dormitorios y estar. Una escalera junto a la medianera da acceso a una terraza en la azotea, con vistas a los jardines vecinos y a los del propio edificio.



La volumetría final del edificio refuerza la idea de permeabilidad y crea a la vez variaciones en su fachada. Así, todos los jardines, el fondo de la manzana y las terrazas se ofrecen a la vista desde la calle, generando un momento de ruptura en el frente construido de la ciudad, proponiendo así otra manera de habitar una ciudad cada vez más densa.























