Casa Remedios / Landa Studio

Casa Remedios / Landa Studio - Imagen 2 de 24Casa Remedios / Landa Studio - Fotografía exterior, Concreto, Patio interiorCasa Remedios / Landa Studio - Imagen 4 de 24Casa Remedios / Landa Studio - Fotografía interior, Madera, Sillas, VidrioCasa Remedios / Landa Studio - Más Imágenes+ 19

  • Arquitectos: Landa Studio
  • Área Área del proyecto de arquitectura Área:  350
  • Año Año del Proyecto de arquitectura Año:  2024
  • Fotógrafos
    Fotografías:Andres Alejos
Más informaciónMenos información
Casa Remedios / Landa Studio - Imagen 4 de 24
© Andres Alejos

Sitio y Contexto – Casa Remedios es una restauración y ampliación de una residencia centenaria ubicada en el barrio Colonia Americana de Guadalajara. Colonia Americana es uno de los distritos más vibrantes, transitables y verdes de la ciudad, habiendo pasado por un período de revitalización y gentrificación en las últimas décadas. La casa es una de muchas estructuras de estilo poscolonial, distinguidas por su expresiva fachada callejera, su terreno alargado y sus patios internos que organizan el espacio y permiten que la luz natural penetre profundamente en los interiores.

Casa Remedios / Landa Studio - Fotografía exterior, Concreto, Patio interior
© Andres Alejos
Casa Remedios / Landa Studio - Imagen 2 de 24
© Andres Alejos

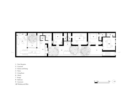
Las HabitacionesLos dos tercios frontales de la casa están en gran parte preservados, manteniendo la organización espacial original. Esta porción alberga las habitaciones de huéspedes, restauradas con materiales locales. Los pisos originales de ajedrez se han conservado y, donde ha sido posible, se han extendido. Los baños se han reorganizado para que cada habitación de huéspedes ahora tenga una suite privada.

Casa Remedios / Landa Studio - Imagen 9 de 24
© Andres Alejos
Casa Remedios / Landa Studio - Fotografía interior, Comedor, Madera
© Andres Alejos

El patio de entrada central — previamente pavimentado cuando la casa funcionaba como guardería — se transforma en un jardín plantado con tres grandes árboles y un suelo de grava. Se ha añadido una cocina exterior, situada a lo largo del patio y extendiéndose ligeramente hacia el área de las habitaciones de huéspedes. Se ha eliminado una pared que separaba el patio del vestíbulo de entrada del lado de la calle, creando una conexión visual y espacial fluida entre la escalera de entrada y el jardín.

Casa Remedios / Landa Studio - Imagen 6 de 24
© Andres Alejos
Casa Remedios / Landa Studio - Fotografía interior, Madera, Puerta, Vidrio, Concreto
© Andres Alejos
Casa Remedios / Landa Studio - Fotografía interior, Madera, Sillas, Vidrio
© Andres Alejos

Viviendo Alrededor de un Patio – El tercio trasero de la casa, una vez un cuarto de servicio y cocina en mal estado, se reconstruye como una residencia privada. Esta adición de dos pisos está organizada alrededor de un patio central. La planta baja incluye la entrada, cocina, comedor y espacios de estar, mientras que el nivel superior contiene las áreas más privadas: una pequeña sala de medios, espacio familiar, dormitorio, vestidor y baño principal.

Casa Remedios / Landa Studio - Fotografía interior, Concreto
© Andres Alejos

Cada espacio se abre directamente al patio, donde un Jacarandá replantado — característico del vecindario — ancla el diseño. Ninguna profundidad interior supera los 4.5 metros, asegurando abundante luz natural durante todo el día. Ventanas y puertas corredizas bordean todos los lados del patio en ambos niveles, disolviendo la frontera entre el interior y el exterior, y permitiendo que el Jacarandá asome dentro de la casa, convirtiéndose así en un participante activo de la vida cotidiana.

Casa Remedios / Landa Studio - Imagen 19 de 24
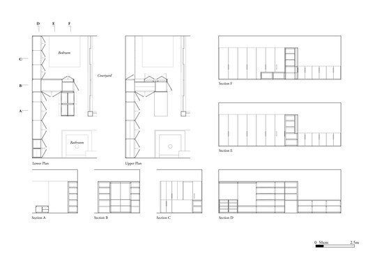
Planta Baja
Casa Remedios / Landa Studio - Imagen 21 de 24
Sección
Casa Remedios / Landa Studio - Imagen 20 de 24
Planta Alta

Sin Umbrales – El concepto espacial enfatiza la continuidad, permitiendo que los espacios se entrelacen entre sí. Se evitan los umbrales duros, como puertas, rejas o particiones rígidas; en favor de elementos suaves y flexibles, como cortinas y mobiliario. La mesa de la cocina, que se extiende ocho metros de largo, funciona como un descanso de entrada, una superficie de preparación y una mesa de comedor, conectando sin esfuerzo la entrada de la planta baja, la cocina, el comedor y las áreas de estar. En el piso superior, el trabajo de carpintería del armario personalizado se convierte tanto en un conector espacial entre el dormitorio y el baño como en una plataforma de descanso después del baño.

Casa Remedios / Landa Studio - Fotografía interior, Madera, Iluminación, Sillas, Vidrio
© Andres Alejos

Al minimizar las habitaciones cerradas definidas por elementos tradicionales — paredes, puertas, ventanas — el patio, el mobiliario y el trabajo de carpintería emergen como las características organizativas principales. Esta estrategia crea una sensación de apertura, haciendo que la casa se sienta más grande y expansiva.

Casa Remedios / Landa Studio - Fotografía interior, Madera, Baño, Concreto, Vidrio, Tarjas
© Andres Alejos
Casa Remedios / Landa Studio - Fotografía interior, Dormitorio
© Andres Alejos

Adaptativa y Flexible – Casa Remedios está concebida como un mecanismo vivo en lugar de un artefacto estático. Diseñada para una pareja que navega por cambios rápidos en la vida, no es una instantánea congelada en el tiempo, sino un marco adaptable. Los cimientos de la casa son deliberadamente flexibles, capaces de acomodar necesidades cambiantes.

Casa Remedios / Landa Studio - Imagen 15 de 24
© Andres Alejos

Mientras que la residencia en la parte trasera permanece como el dominio más privado, las habitaciones restauradas en la parte delantera están previstas para evolucionar — potencialmente convirtiéndose en una oficina, gimnasio, garaje o estudio en el futuro. El diseño, por lo tanto, equilibra especificidad con adaptabilidad, presentando no un monumento, sino un estudio de caso en reutilización flexible y sostenible.

Casa Remedios / Landa Studio - Imagen 7 de 24
© Andres Alejos

Galería del Proyecto

Ver todoMostrar menos
Sobre esta oficina
Cita: "Casa Remedios / Landa Studio" [Casa Remedios / Landa Studio] 21 oct 2025. ArchDaily México. Accedido el . <https://www.archdaily.mx/mx/1035239/casa-remedios-landa-studio> ISSN 0719-8914

Has seguido tu primera cuenta!

¿Sabías?

¡Ahora recibirás actualizaciones de las cuentas a las que sigas! Sigue a tus autores, oficinas, usuarios favoritos y personaliza tu stream.