
-
Arquitectos: Estudio Bher Arquitectos
- Área: 135 m²
- Año: 2025
-
Fotografías:Javier Bravo
-
Proveedores: Cookroom, Duplex, Fritz Hansen, Kartell, Kvadrat, Richana, Vitra

Descripción enviada por el equipo del proyecto. Apartamento para Fernando es la consecuencia de insertar en una estructura histórica nuevas necesidades habitacionales, una vez superados los convencionalismos tipológicos tradicionales. El resultado es una vivienda atractiva, funcional, serena y luminosa.

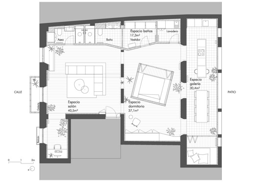
Cuando llegamos por primera vez al inmueble nos lo encontramos diáfano, expuesto, sin tabiques. Fernando nos cuenta que en su casa vivirán una o dos personas, que de vez cuando puede que se queden uno o dos invitados a dormir, y que también vendrán algunos más a cenar, o tomar algo.

Originalmente el edificio se organizaba en dos crujías, apoyadas en dos profundos muros de carga en sendas fachadas opuestas, y una línea estructural intermedia más ligera, pero también con fuerte presencia por su materialidad original y refuerzos vistos.

En algún momento de su vida útil el edificio había crecido hacia el patio de manzana, desplazando la línea de fachada y convirtiendo en interior lo que en principio pudo ser una galería. Y apareciendo, en consecuencia, una banda central con escasa luz natural y sin ventilación directa.

Decidimos aprovechar el enorme potencial del espacio desnudo. Dejamos la estructura existente exenta y proponemos una vivienda completamente abierta, en la que todo sea transparente y la luz pase de fachada a fachada. Queremos conseguir que la percepción del lugar sea infinita, y que cualquier límite se diluya.


Ubicamos el programa estratégicamente, de forma que no se interrumpan las visuales cruzadas. Los tres usos principales –estar, dormir y comer-, se disponen en paralelo, y sin división aparente entre ellos. Y rompemos en puntos concretos la ortogonalidad para multiplicar los reflejos y transparencias.

Los dormitorios dejan de ser estancias, para convertirse en muebles. Los cuartos húmedos se adosan tácticamente a la medianera y se separan del resto con un tabique transparente en su coronación. El techo continuo y el paso de la luz enfatizan la sensación de amplitud.












