
-
Arquitectos: TRIPTYQUE
- Área: 17462 m²
- Año: 2025
-
Fotografías:Maira Acayaba

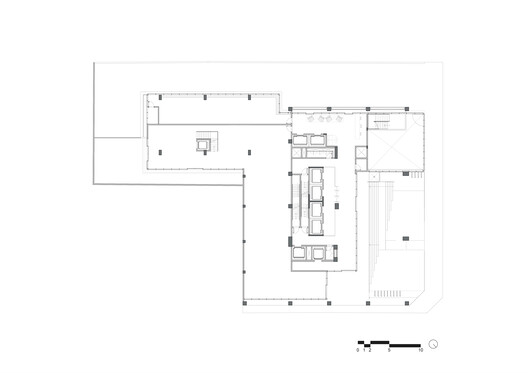
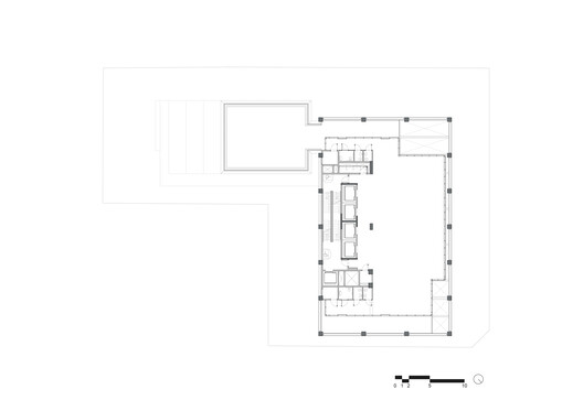
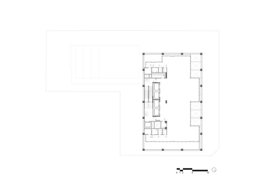
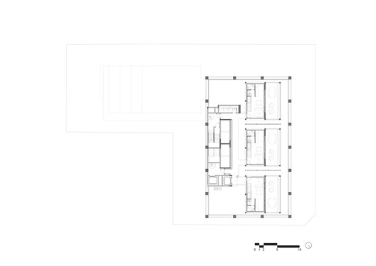
Descripción enviada por el equipo del proyecto. El edificio Inspira SP, situado en la región de la Avenida Paulista, surge como una respuesta contemporánea a un contexto urbano consolidado, marcado por la intensidad cultural y corporativa de São Paulo.


















