
- Área: 844 m²
- Año: 2012
-
Fotografías:Maïté Rossien
-
Proveedores: Hunter Douglas, Argos, Decoblock, Ingaser, Muebles JMC

Descripción enviada por el equipo del proyecto. El Edificio “Bohío” se encuentra ubicado en el tradicional barrio La Macarena, caracterizado por sus perfiles viales paramentados y localizado sobre la falda de los cerros orientales cerca al centro bogotano. El proyecto reúne los usos de vivienda y oficinas, fomentando una forma de vida novedosa y diferente a la que usualmente se propone en Bogotá.
Elevado medio piso sobre la calle, aparece el acceso traslucido en lámina micro perforada que deja entrever las zonas contenidas en el interior. El acceso se da por medio de un espacio exterior conformado por un patio que organiza todo el conjunto e invita a adentrarse a lo que parece ser otro afuera interiorizado. El umbral conformado hacia la calle se presenta como una forma incluyente y abierta de conformar el primer piso de la ciudad. La rampa mecánica que antecede el acceso, fue diseñada para tener tres posiciones y dar la posibilidad a las personas en condición de discapacidad y al carro de acceder al primer nivel y al sótano; a sí mismo es un espacio exterior privado de uso púbico, una terraza que prolonga la actividad de la calle hacia el interior del edificio y crea un estar para el ciudadano que puede hacer una pausa y protegerse de la lluvia y el sol.

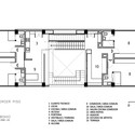
Una vez se franquea el límite impuesto por la puerta de acceso, se revelan dos límites ampliados: el primero, el jardín posterior, conformado por una zona verde que recoge las aguas que bajan del cerro y la lluvias. Este espacio constituye un descenso al semisótano en el cual funciona la oficina de David Delgado Arquitectos. El segundo límite ampliado es el espacio que aparece en el centro de la planta: el patio que mira al cielo, ordena y agrupa toda la vegetación que se descuelga de las viviendas y las cocinas abiertas, reuniendo a los espacios comunales del edificio, que miran hacia el mismo.

Al bajar, se percibe la configuración del espacio de la oficina en una planta libre y abierta. La estructura se ubica en el perímetro del área útil, generando un pórtico del mismo ancho del predio, liberando la planta de apoyos para permitir flexibilidad y continuidad espacial.

Arriba, la cubierta, es una terraza abierta a los cerros orientales y la sabana que se muestra por occidente. Esta zona es una superficie confinada por el panorama lejano y cercano en el que la vegetación contiene una estancia para el encuentro de la comunidad con el paisaje bogotano.
Las instalaciones del edificio se dejan a la vista y son inspeccionables y modificables para que en el futuro se puedan disponer mecanismos de recuperación de aguas lluvias que por efectos presupuestales no entraron en el alcance de la presente obra.

Los materiales son austeros y están compuestos por concreto a la vista, metal, vidrio y bloques de concreto prefabricados. Los pocos colores y elementos que constituyen la materialidad del conjunto, revelan la verdadera y profunda riqueza del mismo: el jardín.
Esa idea del jardín como forma de disponer las viviendas ordena el espacio y logra uno de los mayores objetivos del proyecto: Permitir que la vegetación y la fauna acompañen y den forma a las diferentes actividades de los habitantes. En ese sentido, todo el espacio se hace vida mediante la vegetación que constituye el verdadero aporte cromático y simbólico del ritual planteado por el edificio.

Se establece así, con la idea de un edificio jardín, un punto de contacto con la olvidada naturaleza que en la urbe ha sido alejada de la vida humana, y que paradójicamente está en las faldas de los biodiversos cerros orientales. El edificio Bohío es una búsqueda de belleza que no puede reconocerse en la construcción realizada sino en las formas de vida que esta intenta propiciar.
Se entiende ahora una idea retomada del maestro Salmona citando a Pessoa: “El paisaje no es lo que vemos, sino lo que somos.” Nuestro esfuerzo se orientó en lograr que la comunidad se haga actividad y esta a su vez se vuelva paisaje.

Todos los proyectos de DDA parten del principio general que rige la arquitectura que hacemos y que entendemos como cuestión fundamental: la de re-orientar nuestro vínculo como humanos con la naturaleza. Esto busca que no sólo nuestras construcciones (espacio) sino también nuestros hábitos (tiempo) estén encaminados a promulgar esta armonía con la naturaleza de la cual somos también parte. Mediante nuestras obras, debemos dialogar con ella, saber oírla - sentirla para lograr una arquitectura en balance con Natura.




























