

Descripción enviada por el equipo del proyecto. Hiroi Ariyama & Megumi Matsubara de la oficina de arquitectura ASSISTANT se complacen en presentar la nueva casa ES UN JARDÍN, en el bosque de Karuizawa, Nagano, Japón.

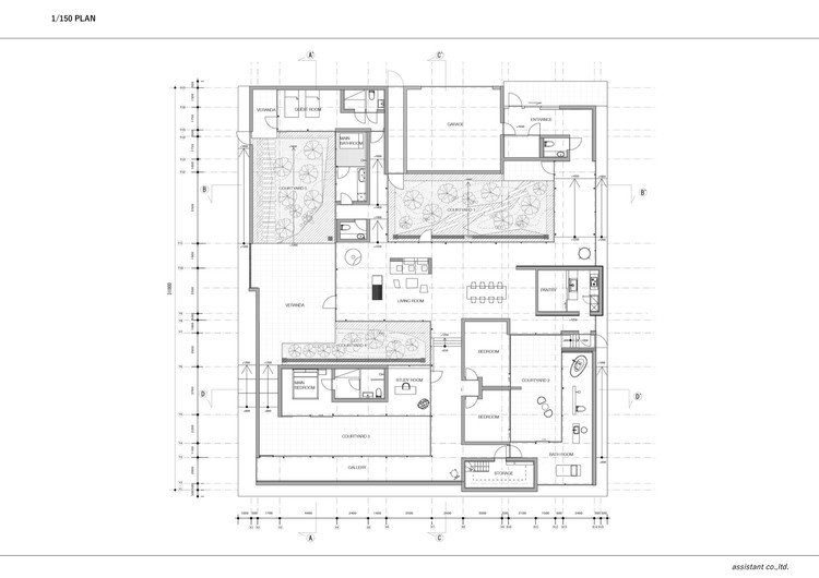
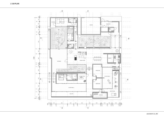
ES UN JARDÍN se encuentra en el bosque de Karuizawa, rodeada por árboles y plantas del bosque. La casa fue diseñada como una casa de huéspedes que contiene una galería de arte privada para la colección del propietario.

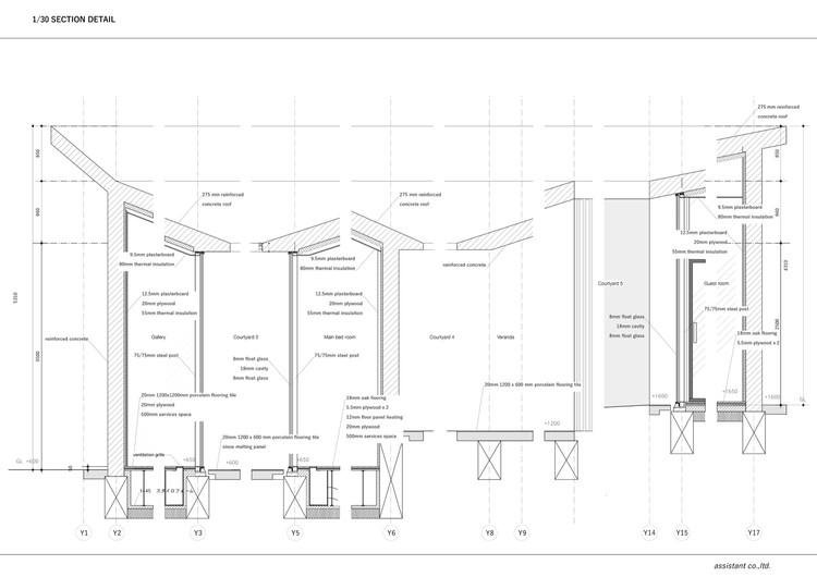
Con su forma plana y cuadrada, la casa de un piso tiene una planta totalmente definida por cinco patios. Todas las fachadas del edificio están hechas de muros de hormigón y cristal negro, dividiendo claramente su espacio interior del entorno externo. La casa abre su techo de hormigón armado al cielo para crear cinco patios. Los techos exteriores se inclinan hacia el interior sólo verticalmente invitando a la luz, así como sombras y reflejos de la naturaleza circundante. Los techos interiores y los niveles del piso, por lo tanto, crean geometría rítmica para apoyar la sencillez del exterior. Todas las habitaciones están diseñadas para hacer frente a los patios cada uno de los cuales es de carácter distinto diseñado para recibir luz en diferentes momentos del día. El sol sale y se pone. La luna crece y disminuye. Este ritmo ininterrumpido de luz, al que sometemos toda la arquitectura, define esta casa.



En el diseño de ES UN JARDÍN, el concepto de interacción vertical del sol a través de los patios cruza con la conexión horizontal a los paisajes naturales japoneses. El volumen de la arquitectura está diseñado para recibir esos elementos en todas las dimensiones; Las inclinaciones de la luz en ángulos siempre cambiantes, la sombra de los árboles del bosque, así como komorebi - la interacción de la luz y las hojas. Siguen moviéndose y dibujan un jardín de sombras en todo el piso a la velocidad del sol y del viento. Las paredes de cristal interiores y las ventanas crean un jardín de reflejos caleidoscópicos de árboles y plantas proyectados sobre ellos desde todos los patios.



No sólo los patios, sino también los jardines hechos de elementos inmateriales que emergen entre la interacción de relaciones verticales y horizontales con la naturaleza son también los jardines diseñados de manera significativa en esta casa.

Luz y sombras se mueven libremente como si fueran los principales habitantes de esta casa. El cliente deseaba que fuera un espacio privado para inspirar más que nada. Los arquitectos respondieron que la primera prioridad de esta casa debía convertirse en la luz del sol, siendo el anfitrión permanente, el cohabitante más cercano.

































