Biblioteca de la Universidad Edgar Morin / ROPA & Associés Architectes

Biblioteca de la Universidad Edgar Morin  / ROPA & Associés Architectes - Fotografía exterior, FachadaBiblioteca de la Universidad Edgar Morin  / ROPA & Associés Architectes - Fotografía interior, Cocina, EstanteríasBiblioteca de la Universidad Edgar Morin  / ROPA & Associés Architectes - Fotografía exterior, Ventanas, FachadaBiblioteca de la Universidad Edgar Morin  / ROPA & Associés Architectes - Fotografía interior, Mesas, SillasBiblioteca de la Universidad Edgar Morin  / ROPA & Associés Architectes - Más Imágenes+ 23

Villetaneuse, Francia
  • Arquitectos: ROPA & Associés Architectes; ROPA & Associés Architectes
  • Área Área del proyecto de arquitectura Área:  6477
  • Año Año del Proyecto de arquitectura Año:  2018
  • Fotógrafos
    Fotografías:Luc Boegly
  • Proveedores Marcas y productos usados en este proyecto de arquitectura
    Proveedores:  Knauf, Arcelor Mittal, BENCORE, Griesser, HEXABEN, Interface, OPTIGREEN, SOLOSCREEN, Schüco, Zumtobel
Biblioteca de la Universidad Edgar Morin  / ROPA & Associés Architectes - Fotografía exterior, Ventanas, Fachada
© Luc Boegly

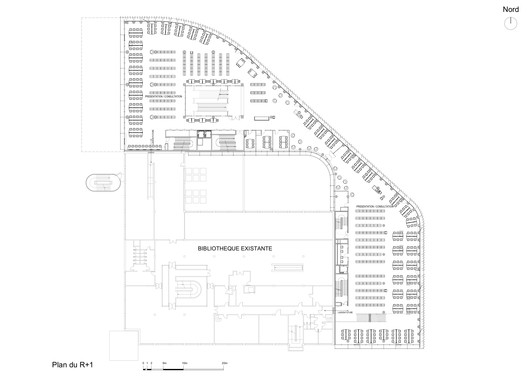
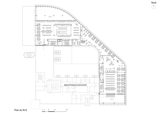
Descripción enviada por el equipo del proyecto. El lugar está marcado por la presencia del campus de cara a la ciudad a través de la nueva biblioteca. Situado en el borde del campus, el nuevo edificio se enrosca alrededor de la antigua biblioteca para crear una dinámica que anuncia el desarrollo y la renovación de la biblioteca y un presagio de la evolución futura del campus. Las limitaciones del plan urbano existente llevaron a una huella de construcción en forma de S muy singular. La ampliación delimita el volumen inicial de la biblioteca y define los límites de la nueva plaza pública. 

Biblioteca de la Universidad Edgar Morin  / ROPA & Associés Architectes - Fotografía exterior
© Luc Boegly

La morfología del nuevo edificio se adapta y deforma asegurando la continuidad de la fachada urbana. Derivado de las características del campus, alineado con la biblioteca existente (G+2) y que se eleva en un movimiento que revela la vida del lector desplegándose en el interior de la biblioteca y encajando en el paisaje urbano y en la línea trazada por el tranvía.  Por el tamaño y la homogeneidad de su fachada, la nueva Biblioteca Universitaria destaca como un equipamiento público a gran escala, cumpliendo su función de interfaz y transición entre la ciudad circundante y la universidad.

Biblioteca de la Universidad Edgar Morin  / ROPA & Associés Architectes - Fotografía exterior, Fachada
© Luc Boegly
Biblioteca de la Universidad Edgar Morin  / ROPA & Associés Architectes - Imagen 18 de 28
Esquema Axonométrico
Biblioteca de la Universidad Edgar Morin  / ROPA & Associés Architectes - Fotografía exterior, Fachada
© Luc Boegly

Un espesor de hormigón esculpido como la efigie de la BU PARIS XIII se extiende a lo largo de la base de la nueva Place François Mitterrand, acompañando el diseño sinuoso de la línea de tranvía y el centro comercial, y afirmando la presencia de esta instalación diseñada para uso colectivo, que se ha convertido en el escaparate del campus en el espacio público. 

Biblioteca de la Universidad Edgar Morin  / ROPA & Associés Architectes - Imagen 14 de 28
© Luc Boegly
Biblioteca de la Universidad Edgar Morin  / ROPA & Associés Architectes - Imagen 27 de 28
Elevación Norte - Sección AA
Biblioteca de la Universidad Edgar Morin  / ROPA & Associés Architectes - Fotografía interior
© Luc Boegly

Una fachada acristalada en las plantas superiores está protegida por sombrillas verticales perforadas de acero inoxidable, que introducen un grosor y una distancia entre el exterior y el interior y crean el juego de luces y sombras según la hora del día. En invierno, a última hora de la tarde y por la noche, toda la actividad dentro de la biblioteca es visible hasta la parte superior de este volumen de pie como una linterna en su base. El acero inoxidable, un material noble, fue utilizado en todo momento con la intención de realzar la apariencia e imbuir el respeto, y ofrecer un nuevo tipo de relación entre la ciudad y los usuarios de la universidad.

Biblioteca de la Universidad Edgar Morin  / ROPA & Associés Architectes - Fotografía interior, Mesas, Sillas
© Luc Boegly

Galería del Proyecto

Ver todoMostrar menos
Sobre esta oficina
Cita: "Biblioteca de la Universidad Edgar Morin / ROPA & Associés Architectes" [Edgar Morin University Library / ROPA & Associés Architectes] 22 jul 2018. ArchDaily México. Accedido el . <https://www.archdaily.mx/mx/897846/biblioteca-de-la-universidad-edgar-morin-ropa-and-associes-architectes> ISSN 0719-8914

Has seguido tu primera cuenta!

¿Sabías?

¡Ahora recibirás actualizaciones de las cuentas a las que sigas! Sigue a tus autores, oficinas, usuarios favoritos y personaliza tu stream.