1. ArchDaily
  2. Artículos

Artículos

Propuesta para Concurso Internacional "The Seed of Light" / Andrea Zuñiga + Daniel Caven

Propuesta para Concurso Internacional "The Seed of Light" / Andrea Zuñiga + Daniel Caven - Image 6 of 4
Cortesía de Andrea Zuniga + Daniel Caven

Diseñado por los estudiantes de arquitectura del Illinois Intitute of Technology , Andrea Zúñiga y Daniel Caven, la propuesta para el concurso de diseño llevado a cabo en Chicago va a redefinir el perfil del sector sur de la ciudad mediante la adición de un nuevo rascacielos hecho de luz. Patrocinado por ComEd, esto no sólo servirá como icono de la compañía, sino también como un símbolo de la conciencia ambiental, aumentando la estética de la zona. La idea es proporcionar un nuevo edificio educativo en la comunidad de Southside con certificado LEED. La finalización estimada del proyecto es de abril de 2014. 

Residencia Cascading U / AREA

Residencia Cascading U / AREA - Image 6 of 4
© Yorgis Yerolymbos

Arquitectos: AREA, Architecture Research Athens Ubicación: Atenas, Grecia Arquitecto A Cargo: Styliani Daouti, Giorgos Mitroulias, Michaeljohn Raftopoulos Año Proyecto: 2009 Fotografías: Yorgis Yerolymbos

Residencia Cascading U / AREA - Image 5 of 4Residencia Cascading U / AREA - Image 7 of 4Residencia Cascading U / AREA - Image 1 of 4Residencia Cascading U / AREA - Image 2 of 4Residencia Cascading U / AREA - Más Imágenes+ 5

Extensión Trasera / LBMV Architects - Luigi Montefusco

Extensión Trasera  / LBMV Architects - Luigi Montefusco - Image 4 of 4
Cortesía de LBMV Architects

Arquitectos: LBMV Architects Ubicación: Wolseley Rd,Londres, Reino Unido Arquitecto: Luigi Montefusco Año Proyecto: 2011 Fotografías: Cortesía de LBMV Architects

Extensión Trasera  / LBMV Architects - Luigi Montefusco - Image 10 of 4Extensión Trasera  / LBMV Architects - Luigi Montefusco - Image 9 of 4Extensión Trasera  / LBMV Architects - Luigi Montefusco - Image 5 of 4Extensión Trasera  / LBMV Architects - Luigi Montefusco - Image 7 of 4Extensión Trasera  / LBMV Architects - Luigi Montefusco - Más Imágenes+ 6

Oficinas Triangle Brick / Pearce Brinkley Cease + Lee

Oficinas Triangle Brick / Pearce Brinkley Cease + Lee - Image 5 of 4
© Jonathan Hillyer

Arquitectos: Pearce Brinkley Cease + Lee Ubicación: Durham, NC, EEUU Equipo: Jeffrey Lee, Irvin Pearce, Rob Harkey Año Proyecto: 2011 Área Proyecto: 1300 m2 Fotografías: Jonathan Hillyer

Oficinas Triangle Brick / Pearce Brinkley Cease + Lee - Image 10 of 4Oficinas Triangle Brick / Pearce Brinkley Cease + Lee - Image 13 of 4Oficinas Triangle Brick / Pearce Brinkley Cease + Lee - Image 11 of 4Oficinas Triangle Brick / Pearce Brinkley Cease + Lee - Image 12 of 4Oficinas Triangle Brick / Pearce Brinkley Cease + Lee - Más Imágenes+ 12

Buijtenkeuken / Studio Elmo Vermijs

Buijtenkeuken / Studio Elmo Vermijs - Paisaje Y Arquitectura
© Ralph Kämena

Arquitectos: Studio Elmo Vermijs Ubicación: Rhoon, Holanda Año Proyecto: 2012 Fotografías: Ralph Kämena, Elmo Vermijs, Sergio Gambetta

Buijtenkeuken / Studio Elmo Vermijs - Paisaje Y ArquitecturaBuijtenkeuken / Studio Elmo Vermijs - Paisaje Y ArquitecturaBuijtenkeuken / Studio Elmo Vermijs - Paisaje Y ArquitecturaBuijtenkeuken / Studio Elmo Vermijs - Paisaje Y ArquitecturaBuijtenkeuken / Studio Elmo Vermijs - Más Imágenes+ 13

Oscar Niemeyer en 3D

Oscar Niemeyer en 3D - Image 3 of 4

Paddle8, en colaboración con la editorial visionaire 62 rio, acaban de publicar la obra de Oscar Niemeyer en 3D. Se trata de un pack de edición limitada -sólo 200 unidades- que contiene 10 láminas con las obras más ícono del conocido arquitecto, los lentes y un pequeño libro.

Con fotografías de Vicente de Paulo, están presentes el Palacio Alvorada, la Catedral Metropolitana y el Palacio Itamaraty en Brasilia, el Museo de Arte contemporáneo de Niteroi, el Palacio Gustavo Capanema en Rio y el Edificio Copan en Sao Paulo.

Oscar Niemeyer, con 104 años, es uno de los arquitectos más importantes de la historia y de Brasil. Sus obras destacan por el dramatismo y sensualidad en el uso del hormigón, siendo un pionero en experimentar con la plasticidad del mismo material. Puedes ver más imágenes, después del salto.

AALTOsites: Guía móvil para la Arquitectura de Alvar Aalto

AALTOsites: Guía móvil para la Arquitectura de Alvar Aalto - Imagen Principal

El Alvar Aalto Museum ha traído para ustedes su primera aplicación para dispositivos móviles: AALTOsites, en donde se puede apreciar la arquitectura del arquitecto finlandés Alvar Aalto. Esta aplicación cuenta con información de las obras más conocidas y destacadas del arquitecto escandinavo, aparte de entregar una buena dosis de historia y detalles. Se entregan numerosas imágenes de los edificios construídos, aparte de una gran cantidad de dibujos, detalles y sus características más importantes.

Más información a continuación.

Vista Del Valle / Zimmerman and Associates

Vista del Valle es una vivienda de 4400 m2 ubicada en los cerros Sonoma. La casa articula formas moderna con materiales suaves y limpios. El proyecto está en un sitio con vista hacia el valle y hacia el Monte Diablo y la bahía este. Su plan consta de varios ejes y sus cubiertas ligeramente inclinadas activan espacios que se ven modernos en y forma pero que se mantienen suaves con la iluminación y terminaciones.

Segundo Lugar Concurso de Anteproyectos ACOFAR

Segundo Lugar Concurso de Anteproyectos ACOFAR - Image 5 of 4
Cortesía de Fernando Vignoni

El Concurso para la nueva sede ACOFAR pretende encontrar una propuesta de diseño para un edificio en Mar del Plata dedicado al acopio, almacenaje, oficinas y equipamientos asociados. El concurso se llevó a cabo durante el mes de Julio y en esta oportunidad les presentamos el proyecto que obtuvo el segundo lugar, propuesta del equipo conformado por Maricarmen Comas, Gabriel Legrand y Fernando Vignoni.

Casa en Avintes / Gisela Silva Monteiro

Casa en Avintes / Gisela Silva Monteiro - Image 2 of 4
© Marcos Oliveira

Arquitectos: Gisela Silva Monteiro Ubicación: 4430 Avintes, Portugal Año Proyecto: 2011 Fotografías: Marcos Oliveira

Casa en Avintes / Gisela Silva Monteiro - Image 6 of 4Casa en Avintes / Gisela Silva Monteiro - Image 1 of 4Casa en Avintes / Gisela Silva Monteiro - Image 9 of 4Casa en Avintes / Gisela Silva Monteiro - Image 13 of 4Casa en Avintes / Gisela Silva Monteiro - Más Imágenes+ 11

Hornsey Road / Pollard Thomas Edwards Architects

Hornsey Road / Pollard Thomas Edwards Architects - Image 1 of 4
© Tim Crocker

Arquitectos: Pollard Thomas Edwards Architects Ubicación: Hornsey Road, Londres Año Proyecto: 2009 Fotografías: Tim Crocker

Hornsey Road / Pollard Thomas Edwards Architects - Image 10 of 4Hornsey Road / Pollard Thomas Edwards Architects - Image 7 of 4Hornsey Road / Pollard Thomas Edwards Architects - Imagen PrincipalHornsey Road / Pollard Thomas Edwards Architects - Image 5 of 4Hornsey Road / Pollard Thomas Edwards Architects - Más Imágenes+ 6

Video: Water Light Graffiti / Antonin Fourneau

El artista Antonin Fourneau ha estado trabajando en conjunto con Digitalarti Artlab, para la creación de una instalación interactiva en base a agua y luz, realizada en las calles de Poitiers, Paris. Consiste en un gran panel con iluminación LED integrada, que al ser expuesto al agua, hace que las luces se activen de forma instantánea y se logre percibir las imágenes creadas por los mismos usuarios.

Más información después del Salto.

Harley in Da House / THREE.BALL.CASCADE.

Harley in Da House / THREE.BALL.CASCADE. - Image 51 of 4
Cortesía de THREE.BALL.CASCADE.

Arquitectos: THREE.BALL.CASCADE. Ubicación: Hodogaya Ward, Yokohama, Kanagawa Prefecture, Japón Año Proyecto: 2012 Fotografías: Cortesía de THREE.BALL.CASCADE.

Harley in Da House / THREE.BALL.CASCADE. - Image 26 of 4Harley in Da House / THREE.BALL.CASCADE. - Image 14 of 4Harley in Da House / THREE.BALL.CASCADE. - Image 25 of 4Harley in Da House / THREE.BALL.CASCADE. - Image 54 of 4Harley in Da House / THREE.BALL.CASCADE. - Más Imágenes+ 64

Sinagoga - Mezquita - Iglesia / Ağırbaş Wienstroer, Architektur & Stadtplanung

Sinagoga - Mezquita - Iglesia / Ağırbaş Wienstroer, Architektur & Stadtplanung - Image 14 of 4
© Thomas Mayer

Arquitectos: Ağırbaş Wienstroer, Architektur & Stadtplanung Ubicación: Bleckstraße, 45889 Gelsenkirchen, Alemania Equipo De Proyecto: Frank Eittorf, Gülşen Bayrak, Doris Lischnewski Año Proyecto: 2010 Área Proyecto: 160.0 m2 Fotografías: Thomas Mayer

Sinagoga - Mezquita - Iglesia / Ağırbaş Wienstroer, Architektur & Stadtplanung - Image 21 of 4Sinagoga - Mezquita - Iglesia / Ağırbaş Wienstroer, Architektur & Stadtplanung - Image 3 of 4Sinagoga - Mezquita - Iglesia / Ağırbaş Wienstroer, Architektur & Stadtplanung - Image 20 of 4Sinagoga - Mezquita - Iglesia / Ağırbaş Wienstroer, Architektur & Stadtplanung - Image 15 of 4Sinagoga - Mezquita - Iglesia / Ağırbaş Wienstroer, Architektur & Stadtplanung - Más Imágenes+ 23

Google lanza nuevo software para experiencias interactivas en espacios físicos

Google lanza nuevo software para experiencias interactivas en espacios físicos - Imagen Principal

Google ha lanzado un nuevo tipo de software que permite a los programadores una experiencia real con espacios interactivos. ‘Interactive Spaces’ son espacios físicos con interacción. Este nuevo software funciona entregando una arquitectura a alto nivel para actividades que responden a eventos en los espacios a través del ‘blob tracking’. En la imagen superior se muestra una instalación con cámaras que toman la posición de los individuos en la habitación, de manera que el software visualiza a través de luces de colores en el suelo donde los participantes están ubicados. El código de fuente (open source), que sin duda abrirá las puertas al las mentes creativas de todo el mundo, es distribuido por una licencia permisiva Apache y es disponible para su descarga aquí.

Casa Menta / James & Mau

Casa Menta / James & Mau - Image 38 of 4
© Luis Salazar

Arquitectos: James & Mau Ubicación: Reus, España Año Proyecto: 2011 Fotografías: Luis Salazar

Casa Menta / James & Mau - Image 26 of 4Casa Menta / James & Mau - Image 15 of 4Casa Menta / James & Mau - Image 6 of 4Casa Menta / James & Mau - Image 17 of 4Casa Menta / James & Mau - Más Imágenes+ 34

Tactical Archipelago / LCLAOFFICE

Tactical Archipelago / LCLAOFFICE - Image 1 of 4
© LCLAOFFICE

En un plan maestro conceptual, Luis Callejas, Melissa Naranjo y Manon Mollard de LCLAOFFICE han creado una serie de grupos operativos que se pueden insertar en las Islas Kiev para preservar la esencia natural de las islas. Las islas Kiev representan una oportunidad única para permitir a aquellos que viven en centros urbanos, para poder equilibrar la vida urbana con estos lugares naturales.

Mas sobre este proyecto urbano a continuación.

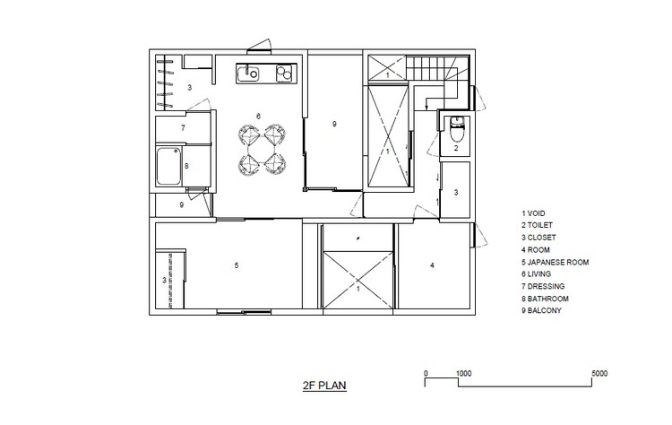
HouseT / Hiroyuki Shinozaki Architects

HouseT / Hiroyuki Shinozaki Architects - Image 1 of 4
© Hiroyasu Sakaguchi

Arquitectos: Hiroyuki Shinozaki Architects Ubicación: Tokyo, Japón Ingeniería Estructural: Tatsumi Terado Contratista: Sinei Ltd Año Proyecto: 2012 Fotografías: Hiroyasu Sakaguchi

HouseT / Hiroyuki Shinozaki Architects - Image 16 of 4HouseT / Hiroyuki Shinozaki Architects - Image 7 of 4HouseT / Hiroyuki Shinozaki Architects - Image 3 of 4HouseT / Hiroyuki Shinozaki Architects - Image 8 of 4HouseT / Hiroyuki Shinozaki Architects - Más Imágenes+ 13

Casa Oculta / Teatum+Teatum

Casa Oculta / Teatum+Teatum - Image 2 of 4
© Lyndon Douglas

Arquitectos: Teatum+Teatum Ubicación: Londres, Reino Unido Fotografías: Lyndon Douglas

Casa Oculta / Teatum+Teatum - Image 6 of 4Casa Oculta / Teatum+Teatum - Image 9 of 4Casa Oculta / Teatum+Teatum - Image 5 of 4Casa Oculta / Teatum+Teatum - Image 3 of 4Casa Oculta / Teatum+Teatum - Más Imágenes+ 14

Video: Outside In / Takeshi Hosaka

Nuestros amigos de la Revista JA+U han compartido con nosotros este video de la Casa Outside In, publicada anteriormente en Plataforma Arquitectura.

Wiel Arets asumirá como decano del Illinois Institute of Technology

Wiel Arets asumirá como decano del Illinois Institute of Technology - Edificios Públicos
© Wiel Arets

Wiel Arets (1955) será el nuevo decano de la Escuela de Arquitectura del IIT (Illinois Institute of Technology). Así lo anunció hace unos días el rector Alan Cramb. Arets es conocido por su basta experiencia académica, ha sido decano del Instituto Berlage de Rotterdam entre 1995 y 2002, profesor en la Architectural Association de Londres, en la Universidad de Columbia, Cooper Union, Princeton y actualmente es profesor en la Universidad de las Artes de Berlín.

Arets asumirá su cargo en este otoño americano, liderando un programa académico originalmente creado por Ludwig Mies van der Rohe, el que posee su visión y trabajo. Considerado uno de los padres de la arquitectura moderna, Mies lideró el programa del ITT desde 1938 a 1958 y diseñó el campus principal, hogar de muchas de las obras del arquitecto, como el clásico S.R. Crown Hall.

Casa La Baronia / Nicolás del Rio - Max Núñez

The Battery Conservancy anuncia su concurso Internacional "Dibuja una silla"

The Battery Conservancy anuncia su concurso Internacional "Dibuja una silla" - Image 2 of 4

El pasado 31 de Julio abrió la inscripción para el concurso internacional de diseño “dibuja una silla”, organizado por la fundación The Battery Conservancy. Este concurso pretende encontrar una propuesta ganadora para el diseño de asientos portátiles e innovadores de uso exterior para The Battery, un parque ubicado en el extremo sur de Manhattan. La propuesta ganadora será fabricada y se seleccionarán 50 para ser presentadas en una exposición en todo el parque.

La convocatoria es abierta a estudiantes, artistas y profesionales ligados al diseño de toda América. La elección de la propuesta ganadora estará a cargo de un destacado jurado internacional y el premio al primer lugar son U$D 10,000.

El comunicado oficial con toda la información después del salto.

Proyecto prototipo Casa U-Calli / Jonathan Castellon

Los prototipos de vivienda social siempre han sido tema recurrente en México, U-Calli es una empresa inmobiliaria importante que se distingue por ser una de las mayores constructoras de viviendas en serie de nuestro país. Jonathan Castellon, arquitecto mexicano nos comparte su propuesta para el concurso que realiza U-Calli cada año para incentivar el diseño en esta área. Información y planos después del corte. 

Has seguido tu primera cuenta!

¿Sabías?

¡Ahora recibirás actualizaciones de las cuentas a las que sigas! Sigue a tus autores, oficinas, usuarios favoritos y personaliza tu stream.