
-
Arquitectos: taller de arquitectura de bogotá
- Área: 2369 m²
- Año: 2022
-
Fotografías:Roland Halbe

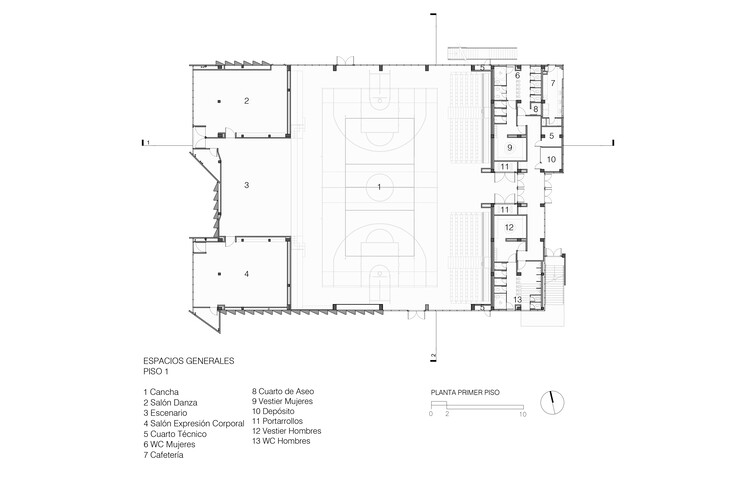
Descripción enviada por el equipo del proyecto. El proyecto del gimnasio del Colegio Los Nogales corresponde a un repotenciamiento, actualización y ampliación del polivalente existente para llevarlo a estándares técnicos y deportivos actuales. Al estar insertado en un campus escolar desarrollado en tres décadas, se le da especial valor a la preservación de la escala y la naturaleza de la materialidad como pieza fundamental en el diseño.



Aunque el volumen debe crecer por la incorporación de nuevos programas, se mantiene legible la masa original, la cual asume una nueva envolvente con el mismo material de origen, el ladrillo, pero colocado en plegadura para facilitar la estructuración de muros continuos de gran altura, establecer perforaciones de ventilación y brindar una nueva imagen al edificio. Las piezas que se adicionan toman una nueva materialidad, envolventes en paneles de alta densidad tipo panelex, con el propósito de que se reconozca su tipología aditiva.



Para el interior se mantiene la estructura base del edificio así como sus cerchas de cubierta que sencillamente se les incorpora un sutil reforzamiento estructural. La materialidad del gran espacio se convierte en una gama sutil de pisos, enchapes y cielo raso con apariencia de madera, logrando una atmósfera cálida y matizada. En contraposición los baños/vestidores se plantean con un intenso ups de color.


Para las salas complementarias se constituyen dos espacios análogos resueltos con un lucernario piramidal truncado que sirve para inyectar luz cenital. Entre ellos el escenario se constituye como un tercer salón con opción de ingreso por la parte posterior.

















