
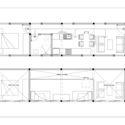
El Infonavit, a través del Centro de Investigación para el Desarrollo Sostenible (CIDS), y en coordinación con la Subdirección General de Crédito, desarrolló el proyecto de investigación "Del territorio al habitante", que busca mejorar la calidad de las viviendas de autoproducción asistida financiadas por el Instituto.
Las viviendas de "Del territorio al habitante" buscan apoyar en la mejora de la calidad de las viviendas del crédito no hipotecario, destinado a derechohabientes con menores ingresos, en el cual el Infonavit ofrece un monto destinado para la construcción de vivienda en terreno propio o en posesión. La autoproducción de vivienda consiste en el proceso de construcción y distribución de vivienda bajo el control directo del usuario de forma individual o colectiva. Se puede desarrollar mediante contratación de terceros o por medio de procesos de autoconstrucción.
Este proyecto es un estudio preciso y riguroso del territorio y cada propuesta presentada da solución a un problema habitacional y cuyo contexto, el territorio dado, fue lo que definió dicho problema.
