
Arquitectos: MARP Ubicación: Budapest , Hungría Arquitectos: Márton Dévényi, Pál Gyürki-Kiss Año Proyecto: 2007 Fotografías: Tamás Török

Arquitectos: MARP Ubicación: Budapest , Hungría Arquitectos: Márton Dévényi, Pál Gyürki-Kiss Año Proyecto: 2007 Fotografías: Tamás Török

Arquitectos: Josep Ferrando
Ubicación: La Barceloneta, Barcelona, España
Fotografías: Adrià Goula

Arquitectos: hke architekten Ubicación: Brühler Str. 69 A-2340 Moedling, Austria Coordinador: Albert Huber Equipo : Waltraud Derntl, Elke Niedermüller, Ralf Rüssel, Xiaoguang Song, Sören Fleischhauer, Stefan Schweighofer, Michael Hieselmayr, Muaz Esen Año Proyecto: 2009 Fotografías: Gerald Zugmann, Cortesía de hke architekten

Arquitectos: BB Arquitectes Ubicación: Mallorca, España Arquitectura: Antoni Barceló y Bàrbara Balanzó Aparejador: Maria Nadal Año Proyecto: 2008 Fotografías: Cortesía de BB Arquitectes
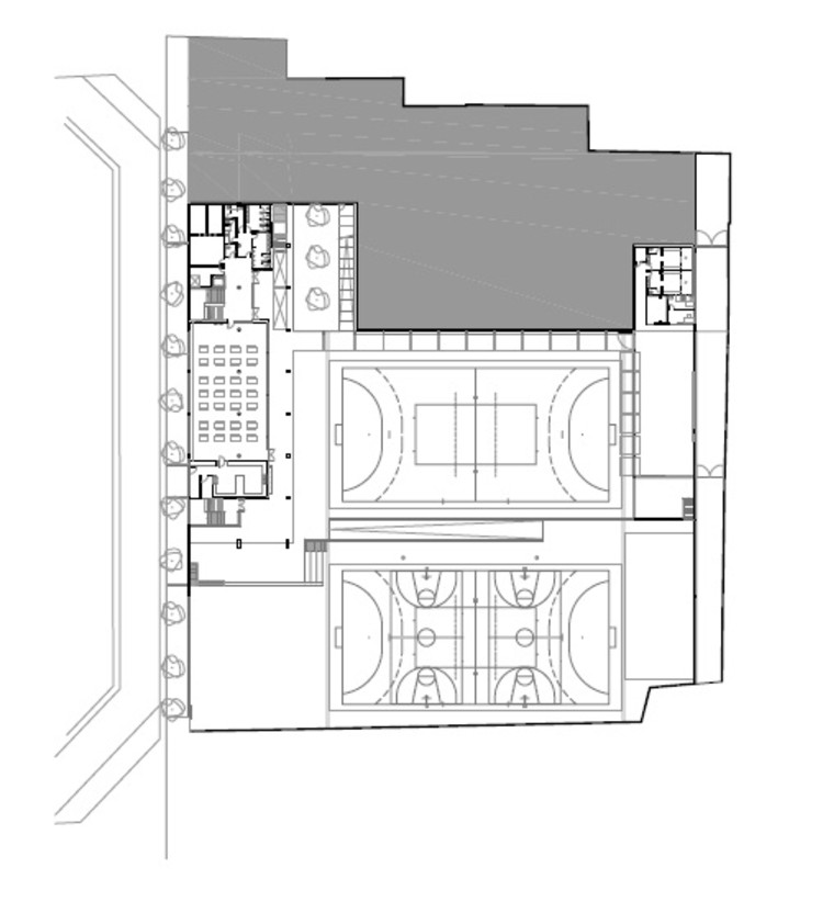
El Centro de Alto Rendimiento de Jamor, para atletas profesionales, se planeó teniendo en cuenta las diversas formas deportivas en las que se expresa el atletismo, y con el fin de centralizar las actividades de formación con un alto nivel de confort para el usuario.

Arquitectos: R79 Ubicación: : Calle 41 Col. Benito Juárez Nte. Mérida, Yucatán, México Arquitecto A Cargo: Roberto Ramírez Pizarro Año Proyecto: 2012 Fotografías: David Cervera Castro

Arquitectos: Rainer Köberl Ubicación: Innsbruck, Austria Arquitecto A Cargo: Rainer Köberl Año Proyecto: 2011 Fotografías: Lucas Shaller
El sitio era conocido como el Colegio de Melbourne de Imprentas y Artes Graficas situadas en el norte de Melbourne y que contenía la lista de patrimonio Escolar del Estado N º 307 que enfrentaba a la calle Queensberry. Nuestra misión era restaurar y atravesar este deteriorada y abandonada construcción en un nuevo estado de instalación de arte que reflejara la visión del Departamento de Educación y de compromiso con el liderazgo educativo.


Arquitectos: Iñaki Echeverria
Ubicación: Villahermosa, Tabasco, México
Equipo De Diseño: Iñaki Echeverria, Iván Parra, Josué Lee, Osvaldo Estrada, Jonathan Hajar, Javier Marroquín, Roberto Fuerte, Guillermo López, Jorge Durán, Daniela González, Leonel Alcántara, Fredy E. Lamadrid, Rafael Brioso, Israel Meneses, Fernanda Téllez, Xochitl Zúñiga, Víctor García
Año Proyecto: 2012
Área Proyecto: m2
Fotografías: Jaime Navarro, Luis Gordoa, Ivan Parra

Arquitectos: Mestura Arquitectes Ubicación: Cornellà de Llobregat, Barcelona Equipo: Humbert Costas, Manuel Gómez, Jaime Blanco, Carlos Durán, Josep M. Estapè Año Proyecto: 2007 Área Proyecto: 3448.71 m2 Fotografías: Pedro Pegenaute

Arquitectos: tallerdea Ubicación: México D.F. Arquitecto A Cargo: René Caro Año Proyecto: 2011 Fotografías: Onnis Luque

Arquitectos: Atelier Feichang Jianzhu Ubicación: Dayi, Sichuan, China Arquitecto A Cargo: Liu Lubin Equipo De Proyecto: Wu Xia, Guo Qingmin, Liang Xiaoning, Feng Bo Año Proyecto: 2009 Área Proyecto: 2114.0 m2 Fotografías: Yang Cao
Los clientes son una pareja con dos perros, cuyos hijos ya abandonaron el hogar. Previamente fueron artistas de tiempo completo antes de encontrar otro trabajo para mantener a su familia. El proyecto pretende ser un instrumento para lograr sus ambiciones juveniles una vez más.


Arquitectos: Johnsen Schmaling Architects Ubicación: Greenfield, Wisconsin, Estados Unidos Año Proyecto: 2011 Área Proyecto: 18.6 m2 Fotografías: John J. Macaulay

Arquitectos: Marcy Wong Donn Logan Architects Ubicación: Acton, CA, Estados Unidos Equipo: Marcy Wong, Donn Logan, Tai-Ran Tseng Año Proyecto: 2011 Fotografías: John Edward Linden
Toda la zona de Beton-und Stahl- cubre una gran parte del parque industrial St. Veit sin ser visible para los extraños. El objetivo del diseño era desarrollar una nueva sede para que las actividades de los tres departamentos puedan ser controlados.


Arquitectos: SPACE Ubicación: Pedregal, Ciudad de México, México Diseño Arquitectónico: Juan Carlos Baumgartner, Jimena Fernández Navarra Colaboradores: Sergio Gaytán, Ana Mallón Año Proyecto: 2011 Fotografías: Pim Schalkwijk