
Arquitectos: Pablo Anzilutti – Jordi Artigas – (ABAA Arquitectes Asociats SL) Ubicación: Avenida Diagonal 98, Barcelona, España Arquitecto Colaborador: Claudia Amat de Swert Año de proyecto: 2005 Año de construcción: 2006-2009 Dirección de Obra: Pablo Anzilutti, Vera Colombo Ingeniería: BOMA Contratista: CISA – Grupo Prasa Fachada: Revestimiento cerámico Porcelanosa Superficie: 528 m² Superficie edificada cubierta: 2600 m² Altura: 23 mts
El proyecto se lleva a cabo, en el período de ebullición inmobiliario en la ciudad de Barcelona. A la gran oferta de viviendas nuevas, se sumaban los altos precios que estaban alcanzando las propiedades, lo que llevaba a una poca diferenciación frente a la abundante oferta. Por otra parte, el sitio se ubica en la parte menos consolidada de la Av. Diagonal, en el denominado barrio 22@. Este barrio era un antiguo polo industrial y actualmente se encuentra en fase de reconversión integral, alojando edificios como la Torre Agbar, el Forum de Herzog & de Meuron o el hotel de Perrault, por lo que en pocos años pasará a ser una de las áreas mas importantes de la ciudad.

La idea central de este proyecto es la de probar que la tendencia a suponer que los intereses inmobiliario y los arquitectónicos son incompatibles puede estar equivocada y que se podía convencer al cliente, una importante promotora inmobiliaria, que aunque se construyan 4 o 5 viviendas menos, las unidades resultantes serian espacial y tipologicamente únicas, distintas a todo lo que se estaba construyendo en la zona.

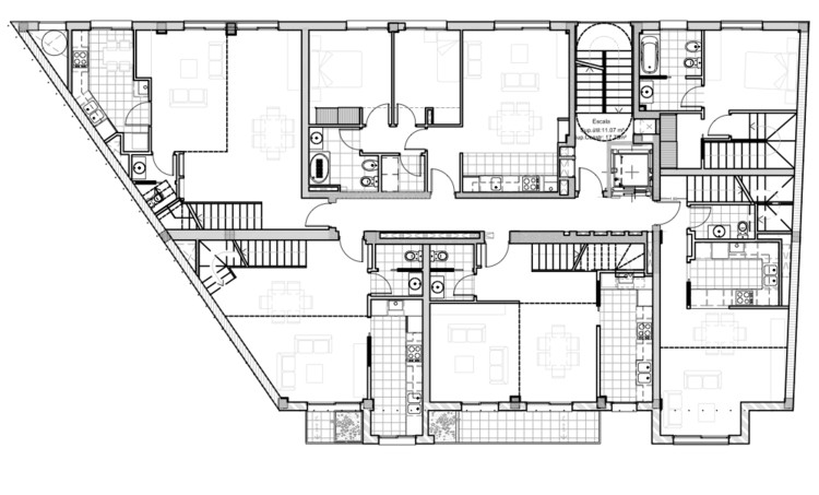
Es así como en un edificio de 22 viviendas hay 11 tipologías diferentes, lo que planteó un gran problema a la hora de resolver todas las infraestructuras de servicios y las estructuras resultantes pero que brinda una extremada amplitud en las formas y tamaños de los apartamentos.
Hay viviendas en duplex, en un planta y otras que tienen fachada frontal y trasera. Esta disposición hace que en determinadas plantas no existan las zonas comunitarias, lo que supone un doble ahorro: por un lado no se carga con ellas al consorcio y por otro, estos metros cuadrados pueden dedicarse a la viviendas en si misma. Además de la planta baja dedicada a local comercial, existen dos plantas de sótanos con capacidad para 38 plazas de parking. En todos las unidades se busca dar una respuesta no solo morfológica hacia el exterior, sino también aprovechar los dobles espacios hacia la Av. Diagonal, que nos coincidía con la orientación sur, es decir hacia el mar.

Los detalles constructivos fueron trabajados minuciosamente ya que el proyecto se construyó con el sistema “precio cerrado” lo que exigió un ejercicio de definición del proyecto muy complejo. Formalmente se trabajo como una caja oscura a la cual se anexan volúmenes blancos que componen una fachada asimétrica pero equilibrada. Dichos volúmenes responden en algunos casos a dobles espacios de modo que optimizan la entrada de luz del este.





















