
Arquitectos: Crosson Clarke Carnachan Architects Ubicación: Tutukaka, Nueva Zelanda Arquitecto A Cargo: Ken Crosson Área Proyecto: 204.0 m2 Fotografías: Simon Devitt

Arquitectos: Crosson Clarke Carnachan Architects Ubicación: Tutukaka, Nueva Zelanda Arquitecto A Cargo: Ken Crosson Área Proyecto: 204.0 m2 Fotografías: Simon Devitt
La rehabilitación de un departamento tipo casa en el barrio de Chacarita se planteó como el proceso de transformación de un lugar inhabitado a uno que incorpore las expectativas y modos de vida de sus futuros habitantes. El lugar, ubicado en la planta baja de un edificio en esquina de principio de siglo xx de planta baja y un piso en el barrio de Chacarita de la Ciudad de Buenos Aires, poseía un sótano inundable y una altura considerable como para incorporar entrepisos.

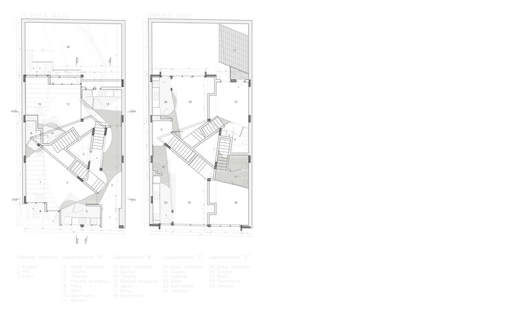
Área Proyecto: m2 Dirección De Obra: Iarón Jacubovich y Ariel Jacubovich Producción: Iarón Jacubovich Asesor Estratégico : Javier Jarak Maquetas: Pina Jax Modelos 3 D: Daniel Goldaracena Sistematización : Gabriela Cárdenas 4 viviendas encastradas: Un emprendimiento inmobiliario convertido en una experimentación sobre las posibilidades de la vivienda. Puzzlehomes es un pequeño edificio de propiedad horizontal de cuatro departamentos ubicado en el barrio de Saavedra, en la ciudad de Buenos Aires, en una zonificación residencial de baja densidad. Las viviendas se organizan espacialmente por encastre, encajando unas con otras en diferentes niveles.


Arquitectos: ARIEL JACUBOVICH | oficina de arquitectura Ubicación: Capitán Gral. Ramón Freire 3576, Buenos Aires, Autonomous City of Buenos Aires, Argentina Proyecto: Ariel Jacubovich Arquitecto Colaborador: Lucila Masciottra Año Proyecto: 2007 Fotografías: Andrea Arrighi

Arquitectos: Estudio Dale Diseño - Arq. Nicolas Mieres Ubicación: Lote 50, Barrio Las Palmas, Rincon de Milberg, Tigre, Buenos Aires, Argentina Superficie terreno: 630 m2 Superficie Construida: 270 m2 Año del proyecto: 2009 Año de construcción: 2010 Empresa Constructora: Di Cio Hno Diseño Interiores: Rosario Garcia Coni Fotografías: Florencia Bouza

Arquitecto: Martin Möstbock Ubicación: Oberpullendorf, Austria Año Proyecto: 2010 Área Proyecto: 665.0 m2 Fotografías: Martin Möstbock

La Casa Farnsworth, construida entre 1945 y 1951, fue diseñada por el arquitecto Mies van der Rohe, como la segunda vivienda para la doctora Edith Farnsworth. La casa está situada en medio de prados y árboles de gran tamaño, bordeando el río Fox, en Plano, Illinois, y es uno de los íconos de la arquitectura del movimiento moderno; caracterizada por ser una simple estructura metálica que sólo se cierra con vidrio.
El pabellón vidriado parece flotar y presenta una fuerte relación con su entorno, el cual preserva casi completamente, mostrando la esencia de la simplicidad en su volumen de forma pura.

Arquitectos: ARX PORTUGAL - José Mateus y Nuno Mateus Ubicación: Caparica, Portugal Equipo: Paulo Rocha, Stefano Riva, Andreia Tomé, Marco Roque Antunes, Pedro Sousa, Tânia Pedro Año Proyecto: 2000- 2003 Año Construcción: 2004- 2007 Área Proyecto: 640 m2 Estructura: SAFRE, Projectos e Estudos de Engenharia Lda. Fotografías: Telmo Miller

Arquitectos: Edward Ogosta Architecture Ubicación: Coachella Valley, California, Estados Unidos Cliente: Withheld Superficie Construida: 1.158 m2 Fecha Proyecto: 2010 Fecha Construcción: 2012 Fotografías: Edward Ogosta Architecture

Arquitectos: Arrokabe arquitectos (Óscar Andrés Quintela, Iván Andrés Quintela, Lourdes Pérez Castro) Ubicación: Rúa de San Pedro, 94, 2º. Santiago de Compostela. A Coruña Promotor: Arrokabe Arquitectos Superficie útil: 209,02m2 Superficie Construida: 306,15m2 Proyecto: 2007 Fin de obra: 2009 Constructor: Trabecon Fotografías: Arrokabe arquitectos y Bernardo Diéguez Morán


Arquitecto: Marta González Arquitectos Ubicación: Madrid, España. Área Terreno: 2.005,00 m2 Área Proyecto: 460,00 m2 Año Proyecto: 2011 Fotografías: Marta González

Arquitectos: APOLLO Architects & Associates – Satoshi Kurosaki Ubicación: Koenji Minami Suginami, Tokyo, Japón Año Proyecto: December 2011 Área Sitio: 37.70 m2 Área Proyecto: 93.44 m2 Fotografías: Masao Nishikawa
El terreno de esta casa se encuentra en la ladera norte de una colina al sur de Hakone. Dispuesta en su parte más alta, para conservar la privacidad, la casa se configura a través de una planta en forma de medialuna que se abre hacia el norte. En corte transversal la casa tiene una forma de “C”.


Arquitectos: Salas Studio Ubicación: Torelló, Barcelona, España Año: 2011 Cliente: Particular Fotografías: Salas studio

Arquitectos: Luis Velasco Roldán (Luis Velasco, Angel Hevia, Gabriel Golomb, María Antonia Garcías, Ana García) Ubicación: Palma de Mallorca, Baleares, España Año Proyecto: 2004 Superficie de Terreno: 1770 m2 Superficie Construída: 3442 m2 Fotografías: Gori Salva

Arquitecto: Waldemarson Berglund Arkitekter Equipo: Jonas Waldemarson, Paulina Berglund, Hanna Kucera Wengelin Año de finalización: 2010 Localización: Björnänge, Åre, Suecia Fotografías: Åke E:son Lindman

Arquitectos: Anonymous Architects – Simon Storey Ubicación: Echo Park, Los Angeles, CA, Estados Unidos Contratista: Armex Construction, Los Angeles Fecha: Marzo 2011 Superficie: 90 m2 Fotografías: Steve King

Arquitectos: Mats Fahlander Ubicación: Lysekil, Suecia Superficie: 90 m2 + 28 m2 / 54 m2 Fecha: 2011 Fotografías: Åke E:son Lindman/Otto