
Arquitecto: Martin Möstbock Ubicación: Oberpullendorf, Austria Año Proyecto: 2010 Área Proyecto: 665.0 m2 Fotografías: Martin Möstbock

Arquitecto: Martin Möstbock Ubicación: Oberpullendorf, Austria Año Proyecto: 2010 Área Proyecto: 665.0 m2 Fotografías: Martin Möstbock

La Casa Farnsworth, construida entre 1945 y 1951, fue diseñada por el arquitecto Mies van der Rohe, como la segunda vivienda para la doctora Edith Farnsworth. La casa está situada en medio de prados y árboles de gran tamaño, bordeando el río Fox, en Plano, Illinois, y es uno de los íconos de la arquitectura del movimiento moderno; caracterizada por ser una simple estructura metálica que sólo se cierra con vidrio.
El pabellón vidriado parece flotar y presenta una fuerte relación con su entorno, el cual preserva casi completamente, mostrando la esencia de la simplicidad en su volumen de forma pura.

Arquitectos: Sauquet Arquitectes – Roger Sauquet Ubicación: Castellar del Vallés, Barcelona, Cataluña, España Fecha Proyecto: 2006 Fecha Construcción: 2006-2007 Superficie Construida: 55 m2 Presupuesto: 80.000 euros Fotografías: STARP ESTUDI – Vicenç Prats

Arquitectos: ARX PORTUGAL - José Mateus y Nuno Mateus Ubicación: Caparica, Portugal Equipo: Paulo Rocha, Stefano Riva, Andreia Tomé, Marco Roque Antunes, Pedro Sousa, Tânia Pedro Año Proyecto: 2000- 2003 Año Construcción: 2004- 2007 Área Proyecto: 640 m2 Estructura: SAFRE, Projectos e Estudos de Engenharia Lda. Fotografías: Telmo Miller

Arquitectos: Edward Ogosta Architecture Ubicación: Coachella Valley, California, Estados Unidos Cliente: Withheld Superficie Construida: 1.158 m2 Fecha Proyecto: 2010 Fecha Construcción: 2012 Fotografías: Edward Ogosta Architecture

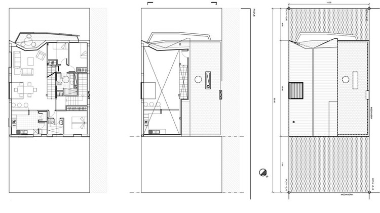
Arquitectos: Arrokabe arquitectos (Óscar Andrés Quintela, Iván Andrés Quintela, Lourdes Pérez Castro) Ubicación: Rúa de San Pedro, 94, 2º. Santiago de Compostela. A Coruña Promotor: Arrokabe Arquitectos Superficie útil: 209,02m2 Superficie Construida: 306,15m2 Proyecto: 2007 Fin de obra: 2009 Constructor: Trabecon Fotografías: Arrokabe arquitectos y Bernardo Diéguez Morán


Arquitecto: Marta González Arquitectos Ubicación: Madrid, España. Área Terreno: 2.005,00 m2 Área Proyecto: 460,00 m2 Año Proyecto: 2011 Fotografías: Marta González

Arquitectos: APOLLO Architects & Associates – Satoshi Kurosaki Ubicación: Koenji Minami Suginami, Tokyo, Japón Año Proyecto: December 2011 Área Sitio: 37.70 m2 Área Proyecto: 93.44 m2 Fotografías: Masao Nishikawa

Arquitectos: Salas Studio Ubicación: Torelló, Barcelona, España Año: 2011 Cliente: Particular Fotografías: Salas studio

Arquitectos: Anonymous Architects – Simon Storey Ubicación: Echo Park, Los Angeles, CA, Estados Unidos Contratista: Armex Construction, Los Angeles Fecha: Marzo 2011 Superficie: 90 m2 Fotografías: Steve King

Arquitectos: Mats Fahlander Ubicación: Lysekil, Suecia Superficie: 90 m2 + 28 m2 / 54 m2 Fecha: 2011 Fotografías: Åke E:son Lindman/Otto

Los Arquitectos del Centro de Innovación y Desarrollo de la Madera CORMA-UC, encabezados por Paula Martínez y Rodrigo Cepeda, han compartido con nosotros su investigación Fondef “La Buena Casa”, que explora las oportunidades que entrega la madera a través de la construcción de prototipos para Traiguén, ciudad al sur de Chile, diseñados en base a criterios bioclimáticos que aseguran su eficiencia energética y confort interior.
Más información e imágenes a continuación.

Arquitectos: Juana Canet Arquitectos Localización: Cas Capità, Marratxí, Mallorca, España Equipo: Juana Canet arquitectos en colaboración con Mª Pilar Riera Vicens Constructora: Construcciones Hidalgo Campoy s.l. Superficie: 228,45 m2 Presupuesto (PEC): 261.757,48 € Año proyecto final: 2007 Fotografía: Cortesía Juana Canet Arquitectos

Arquitectos: 0E1 Arquitectos Ubicación: Porto Alegre, RS, Brasil Equipo: Ana Cristina Castagna, Anna Carolina Manfroi, Gabriel Giambastiani, Mario Guidoux, Pablo Resende Fecha: 2012 Fotografías: Marcelo Donadussi

Casa C es un proyecto de vivienda unifamiliar situado en las afueras de Madrid. El solar está en una ubicación privilegiada de la ciudad cercano un importante campo de Golf y un entorno espectacular con vistas a la montaña. Se plantea como un elemento introvertido – extrovertido y al mismo tiempo arraigado al territorio. Más imágenes a continuación.

Taller Abierto, un equipo de jóvenes arquitectos de Madrid (compuesto por Julio Rodríguez Pareja, Nacho Román Santiago y Daniel Martínez Díaz), recibió el primer lugar en un concurso internacional para la construcción de una vivienda experimental, sostenible y eficiente energéticamente en la Isla de Atka en Alaska (EEUU), el cual fue promovido a finales de 2011. Más imágenes a continuación.

Arquitectos: Juana Canet Arquitectos Ubicación: Urbanización de Bendinat, Mallorca, España Tipo: Vivienda unifamilar con piscina y garaje Dato: En construcción 30% Promotor: Privado Constructora: Eix114 s.l. Superficie: 267,27 m2 Presupuesto: 257.824,19 € Fotografías: Cortesía Juana Canet Arquitectos

Arquitectos: Smart Design Studio Ubicación: Sidney, Australia Equipo de Proyecto: William Smart, Victoria Judge, Richard Storey, Edmund Spencer Cliente: Kevin O’Neill y Johnson Chan Superficie: 325 m2 Fecha: 2010 Fotografías: Cortesía de Smart Design Studio